2-ZKB-DG-Wohnung in ruhiger Lage! Aufzug - Westbalkon - Wallbox Vorbereitung - KfW Effizienzhaus!
Beschreibung
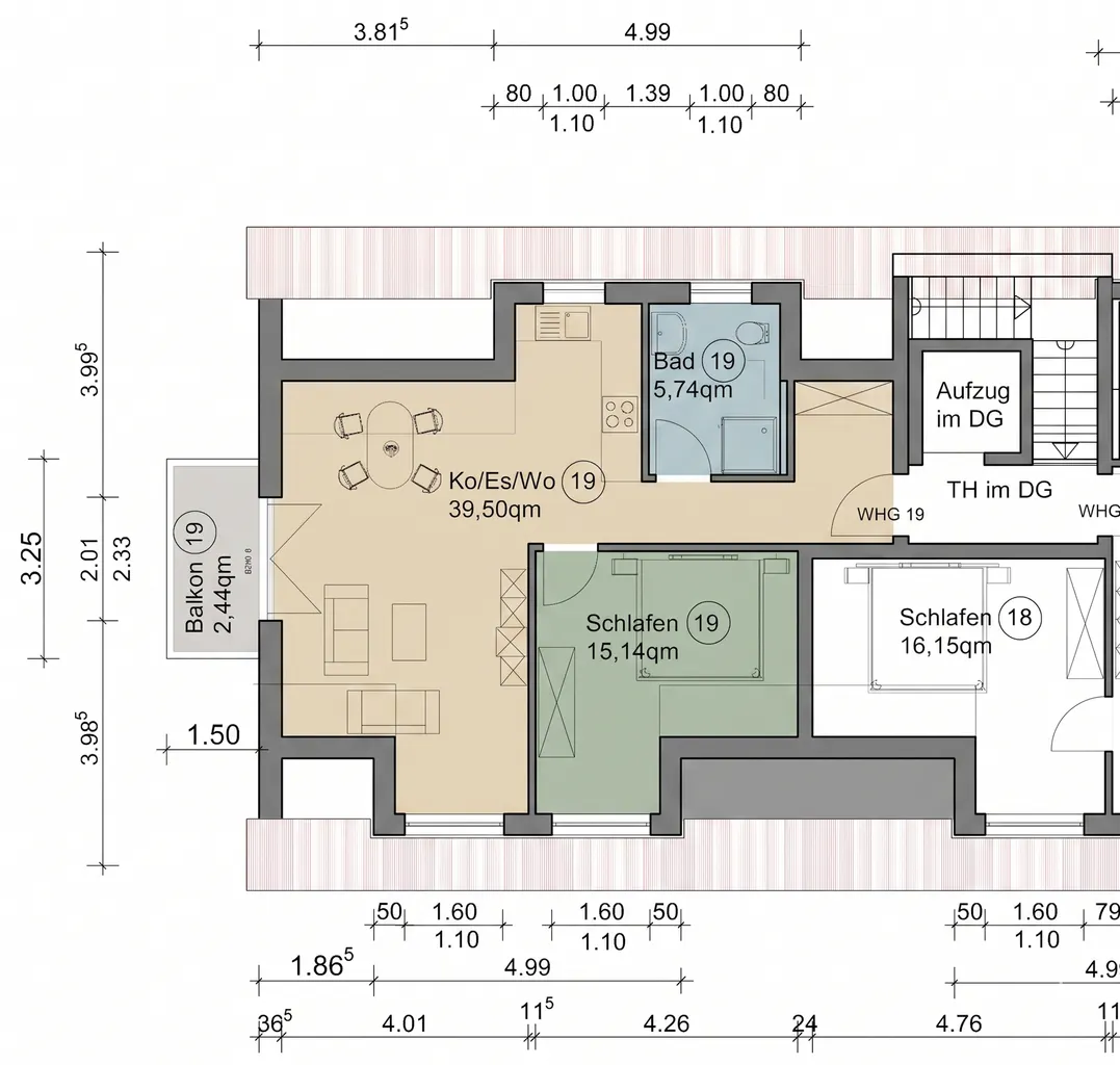
Verkauft wird eine 2-Zimmer-Dachgeschosswohnung mit Westbalkon!
+ 2 ZKB im Dachgeschoss bei circa 62,82 m² Wohnfläche - natürlich mit Personenaufzug!
+ KfW-Effizienzhaus 55, hochwertige Ziegelmassiv-Bauweise, somit kein Wärmedämmverbundsystem notwendig
+ Fußbodenheizung über Einzelraumthermostate, im Sommer mit Kühlfunktion
+ Kunststofffenster mit 3-Scheiben-Isolierverglasung und elektrischen Rollos
+ Personenaufzug je Haus vom Kellergeschoss bis ins Dachgeschoss
+ Tiefgaragenstellplatz mit Wallbox-Vorbereitung
+ dezentrale Be- und Entlüftungsanlage
+ moderne Luft-Wärmepumpe
+ u.v.m.
Individuelle Änderungswünsche sind - je nach Baufortschritt - gerne umsetzbar. Das ansprechende Wohnensemble beherbergt künftig drei Mehrfamilienhäuser. Die Fertigstellung dieser Immobilie ist für circa Mitte 2027 geplant.
+ Ein Tiefgaragenstellplatz kostet optional 25.000 Euro.
+ Ein Außenstellplatz kostet optional 10.000 Euro.
Gerne stehen wir bei weiteren Fragen oder für eine Baustellenbesichtigung beratend zur Seite.
Ausstattung
Lassen Sie sich von der Ausstattungsqualität begeistern - Sie haben spezielle Wünsche an die Innenausstattung oder den Grundriss? Je nach Baufortschritt sind Individualisierungen gerne möglich!
Highlights:
+ Fußbodenheizung mit Kühlfunktion - ideal für heiße Sommermonate.
+ Hochwertiger Silikat-Anstrich im Innenbereich - für ideales Raumklima.
+ Dezentrales Lüftungssystem der Firma Inventer - Frischluft inklusive.
+ Personenaufzug der Firma OTIS vom Kellergeschoss bis ins Dachgeschoss.
+ Bodengleiche, komfortable Duschen mit Fußbodenheizung in den Bädern.
+ Außenwasserhähne an den Terrassen und Balkonen - für kurze Wege.
+ Netzwerkanschlüsse in den Wohn- und Schlafräumen - Highspeed per LAN.
+ Massivbauweise - auch im Hinblick auf die Innenwände - kein Trockenbau.
+ Kellergeschoss aus Stahlbeton WU (wasserundurchlässig) - auf Nummer Sicher gehen.
+ Kunststofffenster mit verdeckt liegenden Beschlägen und 3-Scheiben-Isolierverglasung - energieeffizient und pflegeleicht.
+ Alle vorhandenen Rollläden sind elektrisch bedienbar - für komfortables Öffnen und Schließen.
+ Modernes Luft-Wasser-Wärmepumpen Heizsystem - heute schon an Morgen denken.
+ Hochwertige Dachstuhldämmung und zusätzliche Holzweichfaserplatte als Aufdachdämmung - idealer Hitzeschutz im Sommer.
Lage
Hundszell - ruhig, naturnah und gut angebunden!
Cintura Verde liegt im idyllischen Tiefwiesenweg am ruhigen Ortsrand von Ingolstadt, einer wenig befahrenen und familienfreundlichen Umgebung. Die Lage
besticht durch ihre harmonische Verbindung von Natur und urbaner Nähe: Hier genießen Sie die Ruhe einer verkehrsberuhigten Wohngegend und gleichzeitig den Komfort einer hervorragenden Infrastruktur.
Einkaufsmöglichkeiten, Schulen, Kindergärten und Ärzte befinden sich nur wenige Minuten entfernt und machen den Alltag unkompliziert. Auch Freizeitmöglichkeiten kommen nicht zu kurz – die umliegenden Grünflächen laden zu Spaziergängen, Fahrradtouren oder einfach zum Abschalten ein. Die Nähe zur Donau und zum Altmühltal bietet weitere Ausflugsziele für Naturliebhaber und Sportbegeisterte.
Für Pendler und Berufstätige ist die gute Verkehrsanbindung ein großer Vorteil: Der öffentliche Nahverkehr sowie wichtige Verkehrsachsen wie die Autobahn A9 und die Bundesstraße B16 sind schnell erreichbar. So sind Sie flexibel und mobil, ob in der Stadt, der Region oder darüber hinaus.
Mit seiner ruhigen Lage am Ende einer wenig befahrenen Straße bietet Cintura Verde eine perfekte Balance zwischen Erholung und Erreichbarkeit – ein Zuhause, das alles vereint, was modernes Wohnen ausmacht.
Sonstiges
Sie haben Fragen zum Neubauvorhaben oder einer speziellen Wohnung? Sprechen Sie uns an - wir sind immer gerne für Sie da.
Auch für Ihre individuellen Wünsche an die Ausstattung oder den Grundriss haben wir immer gerne ein offenes Ohr und versuchen diese bestmöglich umzusetzen.
Bitte beachten Sie, dass es sich bei den Planunterlagen um circa Rohbaumaße handelt. Planungsstand Januar 2025 - Änderungen vorbehalten. Die Illustration der Baukörper dient der besseren Veranschaulichung. Abweichungen und Änderungen sind möglich.
Der Energieausweis liegt derzeit noch nicht vor.
Alle Angaben basieren auf Informationen unseres Auftraggebers. Wir übernehmen keine Gewähr für die Vollständigkeit, Richtigkeit und Aktualität dieser Angaben.
FOCUS-Magazin Top-Immobilienmakler:
2013, 2014, 2015, 2016, 2017, 2018, 2019, 2020, 2021, 2022, 2023, 2024, 2025, 2026
BELLEVUE-Magazin Best Property Agent:
2012, 2013, 2014, 2015, 2016, 2017, 2018, 2019, 2020, 2021, 2022, 2023, 2024, 2025, 2026
Daniel Fechner Immobilien, zertifiziert nach DIN EN 15733 (DIAZert) für Maklerdienstleistungen
FECHNER IMMOBILIEN ist Mitglied im Immobilienverband Deutschland IVD, dem Verband der Immobilienberater, Makler, Verwalter und Sachverständigen Region Süd e.V. sowie bei IMMOEBS e.V., der Verein der Ehemaligen und Förderer der Post-Graduate- und Masterstudiengänge zur Immobilienökonomie an der European Business School und der Universität Regensburg.
Kontakt aufnehmen
2-ZKB-DG-Wohnung in ruhiger Lage! Aufzug - Westbalkon - Wallbox Vorbereitung - KfW Effizienzhaus!
Ansprechpartner
Daniel Fechner
Telefon: 004984188547112
Telefax: +49 841 88 54 71 -28
Wohnung zum Kauf
| Kaufpreis 420.000 € |
| Stellplatzanzahl (Tiefgarage) 1 |
| Stellplatzanzahl (Freiplatz) 1 |
| Adresse 85051 Ingolstadt |
| Wohnfläche ca. 62,82 m² |
| Zimmer 2 |
| Objekt-Nr. 5248 |
Ausstattung
| Anzahl Badezimmer 1 |
| Anzahl Balkone 1 |
| Anzahl Etagen 2 |
| Anzahl Schlafzimmer 1 |
| Anzahl Stellplätze 2 |
| Anzahl Zimmer 2 |
| Kategorie Gehoben |
| Baujahr 2027 |
| Bauweise Massiv |
| Befeuerungsart Luft/Wasser-Wärmepumpe |
| Lage im Objekt (Etage) 1 |
| Fahrstuhl Personen |
| Provisionspflichtig |
| Stellplätze 1 |
| Stellplatzpreis 10.000 € |
| Tiefgaragenstellplätze 1 |
| Stellplatzpreis (Tiefgarage) 25.000 € |
| Stellplatzart Tiefgarage, Freiplatz |
| Unterkellert |
| verfügbar ab Mitte 2027 |
| Verkaufstatus offen |
| Zustand Erstbezug |