Dachgeschosswohnung in zentrumsnaher Lage des Ingolstädter Südosten inkl. TG-Stellplatz und EBK!
Beschreibung
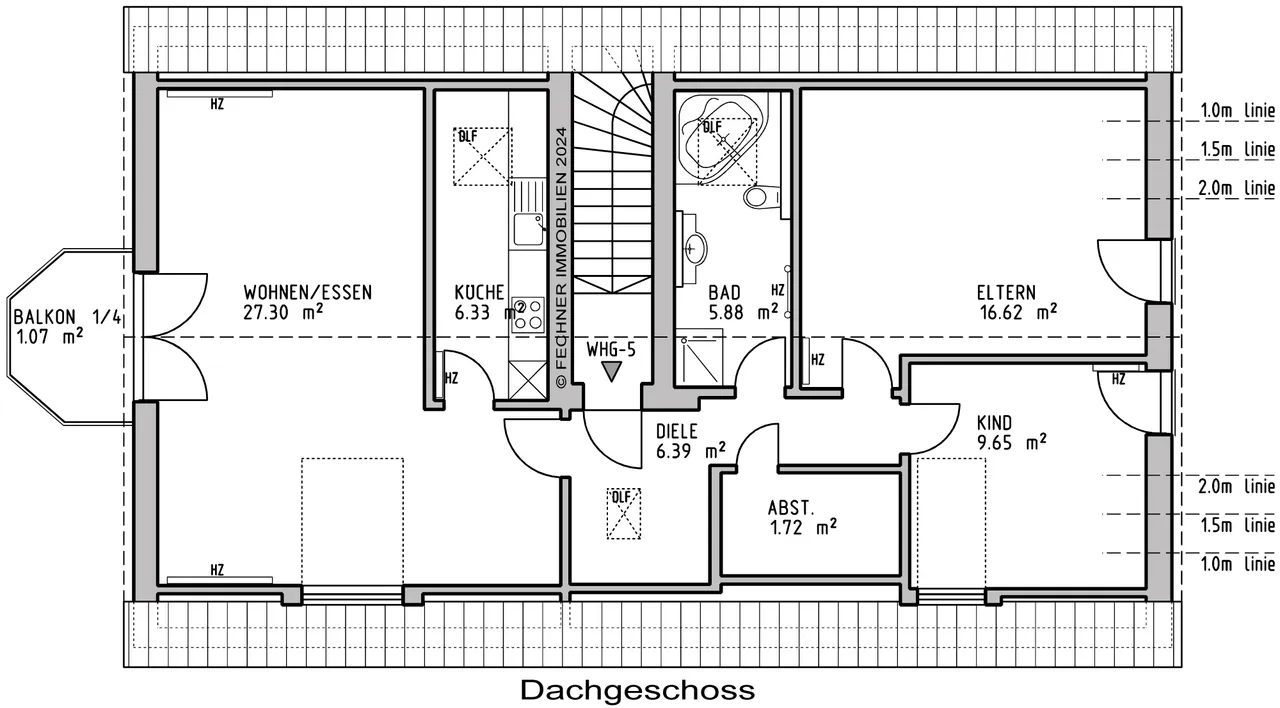
Verkauft wird eine 3-Zimmer-Dachgeschoss Wohnung in zentrumsnaher Lage des Ingolstädter Südostens. Die Wohnung befindet sich im hinteren Gebäude des Grundstücks und erstreckt sich über die gesamte Dachgeschoss-Etage. 
+ Es erwarten Sie 3 ZKB bei circa 74,96m² Wohnfläche. 
+ Ein Kellerabteil und ein Abstellraum innerhalb der Wohnung sind vorhanden. 
+ Im Kellergeschoss steht ein Gemeinschaftswaschraum mit eigenen Stellplätzen für die Waschmaschine / den Trockner zur Verfügung. 
+ Ein Tiefgaragenstellplatz ist bereits im Kaufpreis enthalten. Ebenso die auf den Fotos ersichtliche Einbauküche. 
+ Auf der Westseite steht ein Balkon zur Verfügung. 
Das Mehrfamilienhaus beinhaltet nur fünf Wohneinheiten. Die Eigentümergemeinschaft besteht aus insgesamt zwei Häusern mit jeweils fünf Wohneinheiten, in Summe somit zehn Wohneinheiten innerhalb der Eigentümergemeinschaft. Beheizt werden beide Häuser über ein Gas-Zentralheizung, welche im Jahr 2012 bereits erneuert wurde. Die Energieeffizienzklasse des Gebäudes beträgt gemäß Energieausweis "B". 
Eine Hausverwaltung kümmert sich um die Angelegenheiten der Wohnanlage - ein Hausmeisterdienst übernimmt die Pflege der gemeinschaftlichen Einrichtungen und den Winterdienst.
Ausstattung
Gerne beschreiben wir Ihnen nachstehend einige Details zur Innenausstattung. 
+ Kunststofffenster in der Farbe Weiß mit 2-Scheiben-Isolierverglasung und Rollos (überwiegend). 
+ Alle Decken / Dachschrägen sind pflegeleicht aus hellen weißen Holzpaneelen gefertigt. 
+ In den Wohn- und Schlafräumen befindet sich ein Parkettbodenbelag (Buche). 
+ Die Innentüren wurden im Hinblick auf das Holzfurnier farblich dem Boden angepasst. 
+ Der Eingangsbereich und das Badezimmer sind gefliest. 
Im Badezimmer befindet sich eine Eckbadewanne, eine Dusche, ein WC, ein Waschbecken und ein Handtuchheizkörper. Ein großes Dachflächenfenster ist vorhanden. Ebenso eine Fußbodentemperierung.
Lage
Das Mehrfamilienhaus wurde im Ingolstädter Südosten (Augustinviertel) errichtet. Dank der zentrumsnahen Lage ist auch die Ingolstädter Innenstadt bequem zu erreichen. Innerhalb des Grundstücks befindet sich die Immobilie im hinteren Gebäudekomplex und erstreckt sich über die gesamte Dachgeschoss-Etage. 
In naher Umgebung können Sie bequem alle Dinge des täglichen Bedarfs erledigen - auch fußläufig (Supermarkt, Banken, Bäcker, Getränkemarkt, Metzger etc.). Die Innenstadt erreichen Sie bequem mit dem Fahrrad in circa 5-10 Minuten. Besonders attraktiv ist auch die gute Erreichbarkeit des Ingolstädter Hauptbahnhofs. 
Der Balkon ist nach Westen ausgerichtet.
Sonstiges
Es liegt ein Energieverbrauchsausweis vor.
Dieser ist gültig bis 17.9.2034.
Endenergieverbrauch beträgt 53.00 kwh/(m²*a).
Wesentlicher Energieträger der Heizung ist Nahwärme.
Das Baujahr des Objekts lt. Energieausweis ist 2000.
Die Energieeffizienzklasse ist B.
Alle Angaben basieren auf Informationen unseres Auftraggebers. Wir übernehmen keine Gewähr für die Vollständigkeit, Richtigkeit und Aktualität dieser Angaben.
FOCUS-Magazin Top-Immobilienmakler: 
2013, 2014, 2015, 2016, 2017, 2018, 2019, 2020, 2021, 2022, 2023, 2024
BELLEVUE-Magazin Best Property Agent: 
2012, 2013, 2014, 2015, 2016, 2017, 2018, 2019, 2020, 2021, 2022, 2023, 2024
Daniel Fechner Immobilien, zertifiziert nach DIN EN 15733 (DIAZert) für Maklerdienstleistungen
FECHNER IMMOBILIEN ist Mitglied im Immobilienverband Deutschland IVD, dem Verband der Immobilienberater, Makler, Verwalter und Sachverständigen Region Süd e.V. sowie bei IMMOEBS e.V., der Verein der Ehemaligen und Förderer der Post-Graduate- und Masterstudiengänge zur Immobilienökonomie an der European Business School und der Universität Regensburg.
Kontakt aufnehmen
Dachgeschosswohnung in zentrumsnaher Lage des Ingolstädter Südosten inkl. TG-Stellplatz und EBK!
Wohnung zum Kauf
| Kaufpreis 299.800 € | 
| Stellplatzanzahl (Tiefgarage) 1 | 
| Hausgeld 320 € | 
| Wohnfläche ca. 74,96 m² | 
| Zimmer 3 | 
| Objekt-Nr. 5059 | 
Adresse
Asamstr. 48 a, 85053 Ingolstadt - IN-Südost
Energieverbrauchsausweis
| Endenergieverbrauch 53 kWh/(m²*a) | 
| Befeuerungsart Gas | 
| Heizungsart Zentralheizung | 
| Wesentlicher Energieträger NAHWAERME | 
| Baujahr (Energieausweis) 2000 | 
| Energieeffizienzklasse B | 
| Gültig bis 17.09.2034 | 
| Energieausweis 2014 | 
0200400+
Ausstattung
| Anzahl Badezimmer 1 | 
| Anzahl Balkone 1 | 
| Anzahl Schlafzimmer 2 | 
| Anzahl Stellplätze 1 | 
| Anzahl Wohneinheiten 10 | 
| Anzahl Zimmer 3 | 
| Kategorie Standard | 
| Baujahr 2000 | 
| Bauweise Massiv | 
| Befeuerungsart Gas | 
| Dachform Satteldach | 
| Lage im Objekt (Etage) 2 | 
| Heizungsart Zentralheizung | 
| Küche Einbauküche | 
| Provisionspflichtig | 
| Tiefgaragenstellplätze 1 | 
| Stellplatzart Tiefgarage | 
| Unterkellert | 
| verfügbar ab sofort verfügbar | 
| Verkaufstatus offen | 
| Wasch/Trockenraum | 
| Zustand gepflegt | 
