Dieses Haus begeistert - von außen vornehm zurückhaltend eröffnet sich im Inneren ein Wohntraum!

offen

Beschreibung

Ein Highlight in Kösching - diese besondere Immobilie begeistert sofort! Gerne beschreiben wir Ihnen nachstehend die wichtigsten Details. Für nähere Informationen übersenden wir Ihnen auf Anfrage gerne ein ausführliches Exposé.

+ 5 ZKB bei circa 222,70 m² Wohnfläche (ohne anteilige Terrasse! ohne Fitnessraum etc.!)
+ circa 1.083 m² Grundstücksfläche
+ drei Badezimmer (Eltern, Kinder, Fitness)
+ Doppelgarage mit Hauszugang, separater Außenstellplatz
+ solide, wärmedämmende Ziegel-Massivbauweise einer renommierten, regionalen Baufirma
+ Untergeschoss / Kellergeschoss ausgeführt als WU-Beton (wasserundurchlässig)
+ bis zu über 5 Meter Raumhöhe
+ moderne Haustechnik / Alarmanlage
+ Kamin im Essbereich
+ Nichtraucher-Haus
+ Außenpool mit Überdachung und Gegenstromanlage
+ Fitnessraum mit Sauna
+ u.v.m.

HIGHLIGHT: Kein Instandhaltungsstau - die Immobilie kann sofort bezogen werden. Die Hausfassade als auch der Innenbereich wurden 2025 frisch gestrichen. Die Luft-Wärmepumpe wurde 2024 erneuert.

Erster Eindruck:

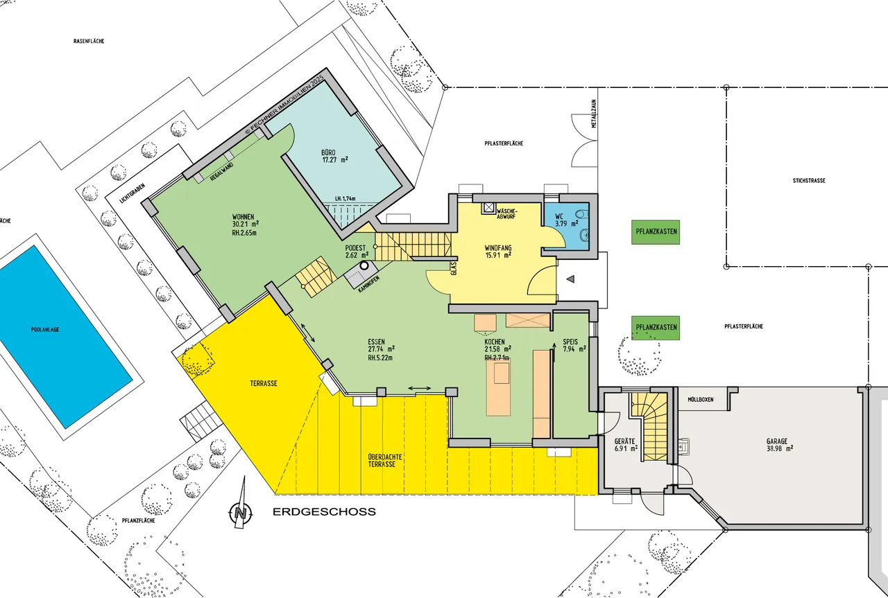
Das Haus spricht Puristen und Liebhaber einer modernen offenen Bauweise an, dennoch hält es sich mit seiner Außenwirkung vornehm zurück. Vor der Immobilie stehend ist es nur schwer zu erahnen, welche Größe und Eleganz sich beim Betreten offenbart. Ermöglicht wird dies durch einen besonderen Grundstückszuschnitt, welchen der Architekt ideal ausgenutzt hat.

Ein einladendes Entrée erwartet Sie nach dem Durchschreiten der Haustüre. Die großzügige Diele bietet viel Platz, Freunde und Gäste bequem ohne ein Gefühl der Enge zu begrüßen.

Ein leicht wirkendes Glaselement trennt den Eingangsbereich vom Wohn- und Essbereich. Optisch erahnen Sie bereits in der Diele die Weite und offene Bauweise des Wohnbereiches.

Drei Quader wurden in verschiedenen Winkeln gekonnt zueinander ausgerichtet, dadurch entsteht bei über 5 Meter Raumhöhe ein wahrer Lichttrichter und ein freies Raumgefühl inmitten des Objektes.

Zudem wurde das Erdgeschoss - ebenso wie die Gartenanlage - auf zwei unterschiedlichen Höhenebenen errichtet (Split-Level) - ein weiteres architektonisches Element, um eine räumliche Abgrenzung innerhalb der offenen Bauweise zu erreichen.

Vom Erdgeschoss können Sie Ihren Blick in Richtung Galerie und Obergeschoss schweifen lassen. Dort bietet der Innenausbau eine flexible Raumaufteilung. Ideal für Schlaf- oder Kinderzimmer, nicht zuletzt aufgrund der zwei vorhandenen Bäder.

Die Außenanlagen überzeugen - wie die gesamte Immobilie - durch klare Linien. Ein professioneller Landschaftsgärtner setzte die Anforderungen gekonnt um. So wurde eine große Terrasse kreiert, der Pool auf eine erhöhte Gartenebene mit Lichtgraben für den Fitnessraum gesetzt sowie zwei Rasenflächen im Südosten und im Westen errichtet.

Insgesamt kann der Garten als pflegeleicht bezeichnet werden, nicht zuletzt Dank einiger technischer Raffinessen. Mutter Natur schützt Sie vor neugierigen Blicken – die Grundstücksgrenzen sind bereits schön eingewachsen.

Ausstattung

Gerne beschreiben wir Ihnen die individuelle, aufwendige und in vielen Details sehr hochwertige Innenausstattung:

Ausstattungsdetails – Bodenbeläge

+ Juramarmor gebürstet im gesamten Erdgeschoss und als Bodenbelag der Treppen- und Flure, auch im Kellergeschoss
+ Nussbaum-Echtholzparkett im Arbeitszimmer und den Schlafräumen
+ Feinsteinzeug in allen 3 Bädern
+ Granitplatten „chinagrau matt“ im Außenbereich

Ausstattungsdetails – Türen

+ weiß lackierte Holztüren, mit Stumpfeinschlag in den Wohnbereichen, weiß lackierte Schiebetüre
+ Glastüren

Ausstattungsdetails – Fenster

+ schwere Holz-/Alufenster mit 3-fach-Isolierverglasung in Bicolor-Ausführung, Außenseite Aluminium pulverbeschichtet anthrazit, innen weiß Lack

Ausstattungsdetails – Haustechnik

+ moderne Wärmepumpe
+ Fußbodenheizung mit Einzelraumthermostaten
+ Wasserenthärtungsanlage
+ Photovoltaikanlage
+ zentrale Staubsaugeranlage, ideal für Allergiker

Ausstattungsdetails - Elektrotechnik

+ elektrische Alu-Jalousien im Süden und Westen ermöglichen besten Schutz vor direkter Sonnenstrahlung – dennoch bleibt es hell
+ im Osten und Norden elektrische Außenrollos
+ GIRA-Schaltersysteme
+ SIEDLE-Steuersystem für Video-Gegensprechanlage, auf allen drei Etagen
+ CANTON/Bose-Lautsprechersystem in vielen Räumen innen & im Terrassenbereich
+ Datenverkabelung mit Serverschrank im Keller
+ elektrische Markise über der Terrassenüberdachung

Ausstattungsdetails – Pooltechnik / Sauna

+ circa 7,00m x 3,50m
+ Gegenstromanlage vorhanden
+ Poolüberdachung vorhanden
+ Beleuchtungselemente installiert
+ Poolheizung vorhanden
+ hochwertiges Filtersystem für weniger Chlorbedarf
+ Sauna im Untergeschoss / Zwischengeschoss mit Lichttherapie

Ausstattungsdetails – Beleuchtungskonzept

+ überwiegend LED-Deckeneinbaustrahler, dimmbar
+ viele indirekte Beleuchtungselemente für zusätzliches Ambiente, z.B. Wandstrahler im Essbereich

Ausstattungsdetails – Bäder

+ Elternbad mit Badewanne, begehbarer Dusche und WC, Bodenbeläge dunkel großflächig gefliest, die Duschen dunkel mit Mosaikfliesen, einzelne Wandelemente weiß gefliest, zusätzlicher Handtuchheizkörper, Waschtisch und indirekte Beleuchtungselemente
+ Duschbad im Obergeschoss gefliest wie Elternbad, mit begehbarer Dusche, Handtuchheizkörper und Waschtisch
+ Duschbad im Kellergeschoss, ebenfalls gleich gefliest, mit Handtuchheizkörper und Waschtisch
+ Wäscheabwurfschacht beim Duschbad im Obergeschoss und zusätzlich im Erdgeschoss

Ausstattungsdetails - Einbauküche

+ NOLTE-Markeneinbauküche, Hochglanz Front, weiß Lack
+ Granitarbeitsplatte tiefschwarz „nero assoluto“
+ SIEMENS Markengeräte, z.B. Backofen mit Selbstreinigungsfunktion, Dunstabzugshaube (nach außen), MIELE-Druck-Dampfgarer, Mikrowelle
+ freistehender Kühlschrank mit separatem Wasseranschluss für Wasserspender / Eiswürfel (Edelstahl)

Ausstattungsdetails – Sicherheitstechnik

+ Professionelle Alarmzentrale mit gesamter Hausüberwachung durch Fensterkontakte, Bewegungssensoren im Innenbereich, wahlweise Direktanbindung an Notrufzentrale der Sicherheitsfirma (namhaftes regionales Unternehmen)
+ zusätzlicher Paniktaster, wahlweise mit Polizeianbindung

Ausstattungsdetails - Telefon / Internet / TV

+ DSL-Anschluss verfügbar
+ digitale Satellitenanlage

Lage

Ihr neues Zuhause befindet sich im beliebten Markt Kösching – der Ort befindet sich im stadtnahen Ingolstadt Nordosten. Alle Dinge des täglichen Bedarfs können bequem in naher Umgebung erledigt werden. Ein eigenes Gewerbegebiet ergänzt die gute Infrastruktur. Zudem befindet sich in kurzer Entfernung am Eixelberg ein neuer Supermarkt im Bau.

Das Grundstück selbst befindet sich in einem gewachsenen Wohngebiet in ruhiger Lage. Die nachbarschaftliche Bebauung ist überwiegend geprägt von modernen und hochwertigen Einfamilien- oder Doppelhäusern.

Die Erschließung erfolgt im nordöstlichen Bereich, das Haus und die Gartenanlagen sind nach Südwesten ausgerichtet. Ideal für alle, die viel Sonnenschein suchen.

Sonstiges

Es liegt ein Energieverbrauchsausweis vor.
Dieser ist gültig bis 28.10.2035.
Endenergieverbrauch beträgt 35.60 kwh/(m²*a).
Wesentlicher Energieträger der Heizung ist Luft/wasser Wärmepumpe.
Das Baujahr des Objekts lt. Energieausweis ist 2008.
Die Energieeffizienzklasse ist A.

Alle Angaben basieren auf Informationen unseres Auftraggebers. Wir übernehmen keine Gewähr für die Vollständigkeit, Richtigkeit und Aktualität dieser Angaben.

FOCUS-Magazin Top-Immobilienmakler:
2013, 2014, 2015, 2016, 2017, 2018, 2019, 2020, 2021, 2022, 2023, 2024, 2025

BELLEVUE-Magazin Best Property Agent:
2012, 2013, 2014, 2015, 2016, 2017, 2018, 2019, 2020, 2021, 2022, 2023, 2024, 2025

CAPITAL Top-Immobilienmakler Wohnimmobilien:
2024, 2025

Daniel Fechner Immobilien, zertifiziert nach DIN EN 15733 (DIAZert) für Maklerdienstleistungen

FECHNER IMMOBILIEN ist Mitglied im Immobilienverband Deutschland IVD, dem Verband der Immobilienberater, Makler, Verwalter und Sachverständigen Region Süd e.V. sowie bei IMMOEBS e.V., der Verein der Ehemaligen und Förderer der Post-Graduate- und Masterstudiengänge zur Immobilienökonomie an der European Business School und der Universität Regensburg.

Ansprechpartner

Daniel Fechner

Daniel Fechner

Telefon: 004984188547112
Telefax: 004984188547128

df@fechner-immobilien.com

Kontakt aufnehmen

Haus zum Kauf

Kaufpreis 1.798.800 €
Stellplatzanzahl (Garage) 2
Stellplatzanzahl (Freiplatz) 1
Adresse 85092 Kösching
Wohnfläche ca. 222,70 m²
Zimmer 5
Grundstücksfläche ca. 1.083 m²
Objekt-Nr. 5188

Energieverbrauchsausweis

Endenergieverbrauch 35,60 kWh/(m²*a)
Befeuerungsart Luft/Wasser-Wärmepumpe
Heizungsart Fußbodenheizung
Wesentlicher Energieträger LUFTWP
Baujahr (Energieausweis) 2008
Energieeffizienzklasse A
Gültig bis 28.10.2035
Energieausweis 2014

0200400+

Ausstattung

Anzahl Badezimmer 2
Anzahl Etagen 2
Anzahl Schlafzimmer 3
Anzahl separate WCs 1
Anzahl Stellplätze 3
Anzahl Terrassen 1
Anzahl Zimmer 5
Kategorie Luxus
Baujahr 2008
Bauweise Massiv
Befeuerungsart Luft/Wasser-Wärmepumpe
Gäste-WC
Gartennutzung
Heizungsart Fußbodenheizung
Kabel/Sat-TV
Küche Einbauküche, offene Küche
Provisionspflichtig
Stellplätze 1
Garagenanzahl 2
Stellplatzart Garage, Freiplatz
Unterkellert
verfügbar ab 01.12.2025
Verkaufstatus offen
Wasch/Trockenraum
Zustand teil/vollrenoviert

Weitere Immobilienangebote

Erfolg! Vielen Dank für Ihre Bewertung.

Fehler! Bitte füllen Sie alle Felder aus.