Flexible 2- oder 3-Zimmerwohnung im Ingolstädter Süden (Haunwöhr) - ruhige Lage - sofort verfügbar!

offen

Beschreibung

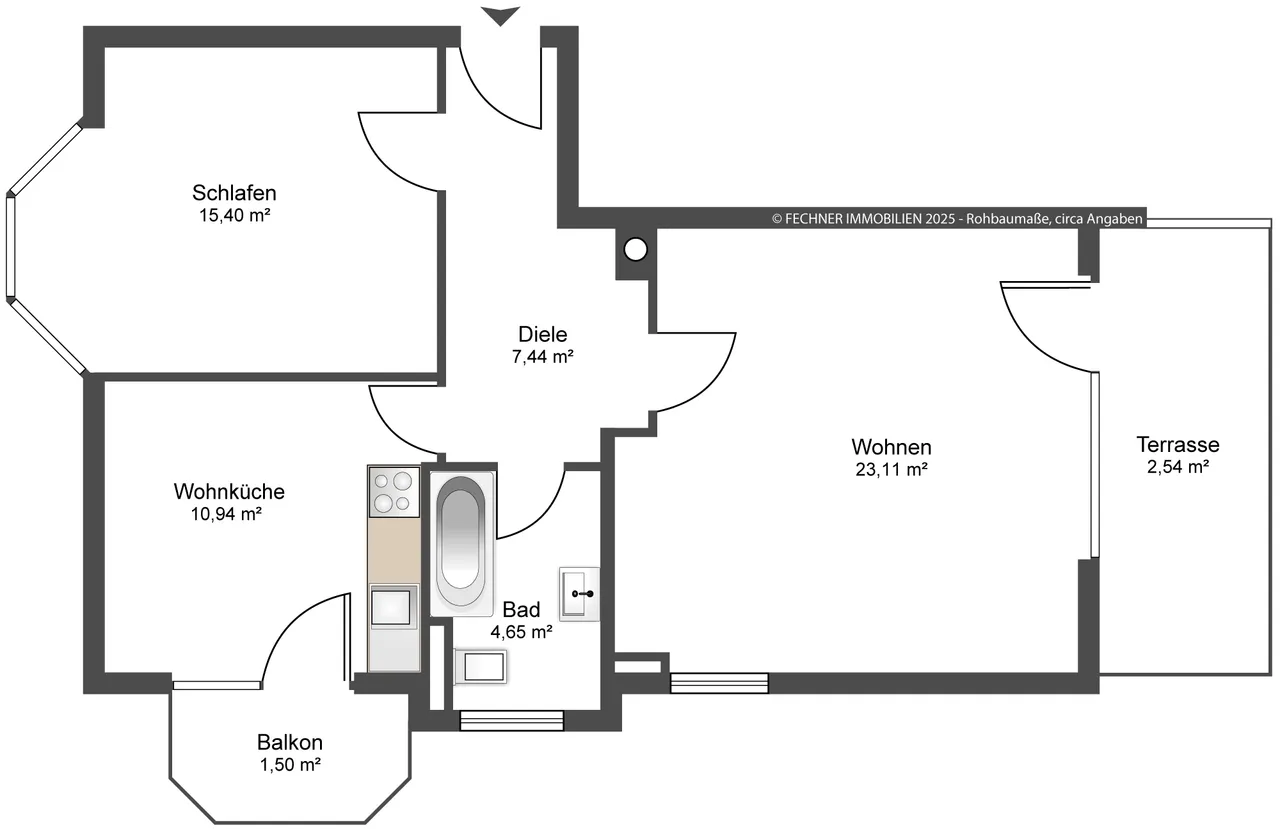
Verkauft wird eine 2-Zimmer-Wohnung in ruhiger Lage des Ingolstädter Südens (Haunwöhr). Die Wohnung kann einfach in eine 3-Zimmer-Wohnung umgewandelt werden, wenn die Küche im Wohnbereich platziert wird (offenes Wohnen/Essen). Derzeit befindet sich die Küche in einem separaten Raum und fungiert somit als Wohnküche mit Platz für einen Esstisch.

Die Eigentümergemeinschaft umfasst insgesamt 33 Wohneinheiten und wird durch eine Hausverwaltung professionell verwaltet. Zuletzt wurden alle Fenster der Wohnanlage durch moderne Kunststofffenster mit 3-Scheiben-Isolierverglasung und Rollos ersetzt. Ein Hausmeisterdienst kümmert sich um die Pflege der gemeinschaftlichen Einrichtungen.

+ Die auf den Fotos ersichtliche Einbauküche ist im Kaufpreis enthalten.
+ Zur Wohnung gehören ein kleiner Westbalkon und eine Terrasse in Südausrichtung.
+ Ein Stellplatz ist nicht vorhanden. Es kann jedoch bequem an der Straße geparkt werden.
+ Das Badezimmer entspricht dem Ursprungsbaujahr und ist unseres Erachtens modernisierungsbedürftig.

Das monatliche Hausgeld beläuft sich derzeit auf 400,00 €. Hiervon sind circa 204,65 Euro umlagefähig, circa 82,17 Euro werden den Instandhaltungsrücklagen zugeführt und circa 106,52 Euro fallen als sonstige Kosten an (z.B. Verwaltergebühren, Instandhaltungen).

Ausstattung

Nachstehend beschreiben wir Ihnen die wichtigsten Details zur Innenausstattung der Wohnung.

+ Neue Kunststofffenster mit 3-Scheiben-Isolierverglasung und neuen Rollos.
+ Braune Innentüren (Holzfurnier Eiche).
+ Laminatbodenbelag (Buche-Optik) in den Wohnbereichen.
+ PVC-Bodenbelag im Küchenbereich.

Das Badezimmer entspricht dem Ursprungsbaujahr (1986) und enthält eine Badewanne, ein WC und ein Waschbecken. Ein Fenster ist vorhanden. Eine Modernisierung empfiehlt sich.

Eine Waschgelegenheit ist aktuell im Gemeinschaftswaschraum im Keller gegeben. Hier können die eigene Waschmaschine und der eigene Trockner platziert werden. Ein großer Trockenraum ist ebenfalls vorhanden.

Lage

Die Wohnanlage befindet sich in attraktiver Lage des Ingolstädter Südens (Haunwöhr). Einkaufsmöglichkeiten sind in naher Umgebung bequem erreichbar. Ebenso die Anbindung an den öffentlichen Personennahverkehr.

Besonders hervorzuheben ist die Nähe zum weitläufigen Grünbereich rund um das Fort Peyerl. Die historische Parkanlage mit Spiel- und Sportflächen bietet vielfältige Möglichkeiten zur Erholung im Freien und liegt nur wenige Gehminuten entfernt. Weitere Naherholungsgebiete, wie das Donauufer, ergänzen das Freizeitangebot.

Insgesamt verbindet die Lage ruhiges, angenehmes Wohnen mit kurzen Wegen und einer hohen Versorgungsqualität.

Sonstiges

Es liegt ein Energieverbrauchsausweis vor.
Dieser ist gültig bis 8.3.2028.
Endenergieverbrauch beträgt 101.00 kwh/(m²*a).
Wesentlicher Energieträger der Heizung ist Gas.
Das Baujahr des Objekts lt. Energieausweis ist 1985.
Die Energieeffizienzklasse ist D.

Alle Angaben basieren auf Informationen unseres Auftraggebers. Wir übernehmen keine Gewähr für die Vollständigkeit, Richtigkeit und Aktualität dieser Angaben.

FOCUS-Magazin Top-Immobilienmakler:
2013, 2014, 2015, 2016, 2017, 2018, 2019, 2020, 2021, 2022, 2023, 2024, 2025

BELLEVUE-Magazin Best Property Agent:
2012, 2013, 2014, 2015, 2016, 2017, 2018, 2019, 2020, 2021, 2022, 2023, 2024

Daniel Fechner Immobilien, zertifiziert nach DIN EN 15733 (DIAZert) für Maklerdienstleistungen

FECHNER IMMOBILIEN ist Mitglied im Immobilienverband Deutschland IVD, dem Verband der Immobilienberater, Makler, Verwalter und Sachverständigen Region Süd e.V. sowie bei IMMOEBS e.V., der Verein der Ehemaligen und Förderer der Post-Graduate- und Masterstudiengänge zur Immobilienökonomie an der European Business School und der Universität Regensburg.

Ansprechpartner

Daniel Fechner

Daniel Fechner

Telefon: 004984188547112
Telefax: 004984188547128

df@fechner-immobilien.com

Kontakt aufnehmen

Wohnung zum Kauf

Kaufpreis 269.800 €
Hausgeld 400 €
Adresse 85051 Ingolstadt
Wohnfläche ca. 64,53 m²
Zimmer 2
Objekt-Nr. 5133

Energieverbrauchsausweis

Endenergieverbrauch 101 kWh/(m²*a)
Befeuerungsart Gas
Heizungsart Zentralheizung
Wesentlicher Energieträger GAS
Baujahr (Energieausweis) 1985
Energieeffizienzklasse D
Gültig bis 08.03.2028
Energieausweis 2014

0200400+

Ausstattung

Anzahl Badezimmer 1
Anzahl Balkone 1
Anzahl Schlafzimmer 1
Anzahl Terrassen 1
Anzahl Zimmer 2
Kategorie Standard
Baujahr 1985
Bauweise Massiv
Befeuerungsart Gas
Heizungsart Zentralheizung
Küche Einbauküche
Provisionspflichtig
Unterkellert
verfügbar ab sofort verfügbar
Verkaufstatus offen
Wasch/Trockenraum
Zustand teil/vollrenovierungsbedürftig

Weitere Immobilienangebote

Erfolg! Vielen Dank für Ihre Bewertung.

Fehler! Bitte füllen Sie alle Felder aus.