Gesamte Dachgeschoss-Etage - Einzelgarage, Stellplatz, neue Einbauküche, großer Keller, sofort frei!
Beschreibung
+++ Provisionsfrei für Käufer +++
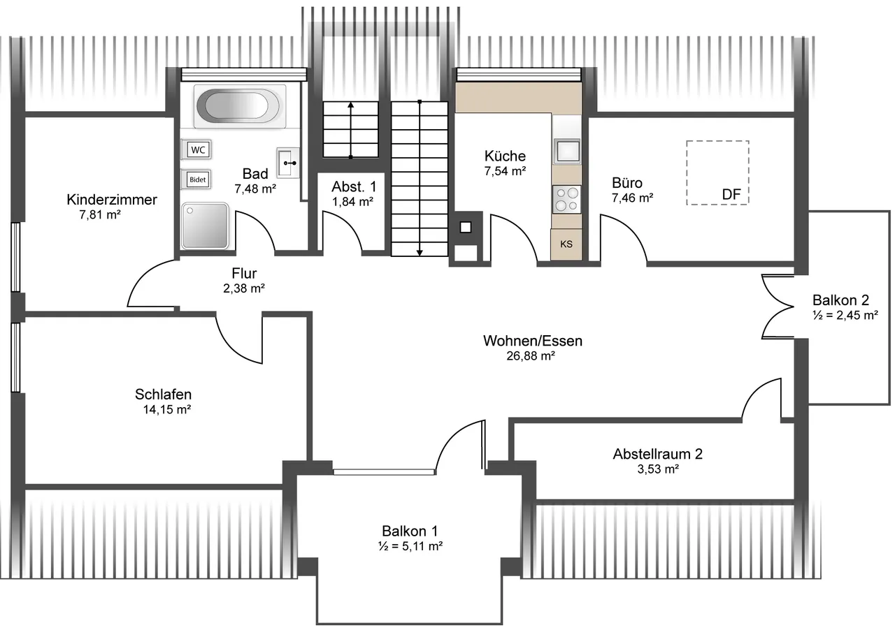
Verkauft wird eine kurzfristig verfügbare 4-Zimmer-Dachgeschosswohnung in bester Wohnlage von Gaimersheim!
+ Die Wohnung erstreckt sich über das gesamte Dachgeschoss.
+ Im Mehrfamilienhaus befinden sich insgesamt nur fünf Wohneinheiten.
+ Ein eigener Treppenaufgang steht ab dem 1. Obergeschoss zur Verfügung.
+ Massivbauweise mit zusätzlichem Wärmedämmverbundsystem (Energieeffizienzklasse B)
+ inklusive elektrischer Markise (bereits im Kaufpreis enthalten)
+ inklusive neuwertiger Einbauküche aus dem Jahr 2024 (bereits im Kaufpreis enthalten)
+ Einzelgarage vorhanden (12.500,00 €).
+ Zusätzlicher Außenstellplatz vorhanden (7.500,00 €).
Weitere Eckdaten:
+ Insgesamt stehen zwei Balkone zur Verfügung (je einmal auf der Süd- und Westseite).
+ Neben einem eigenen, großen und gemauerten Kellerabteil (ca. 19,09m²) bieten zwei Abstellräume innerhalb der Wohnung zusätzlichen Stauraum.
+ Ein Gemeinschaftswaschraum im Keller bietet Platz für die eigene Waschmaschine und den Trockner.
+ BESONDERHEIT: Der Abstellraum innerhalb der Wohnung verfügt ebenso über einen Waschmaschinenanschluss.
Das Mehrfamilienhaus wurde von der renommierten Firma GRUND IDEE Wohn- und Gewerbebau GmbH errichtet - bis heute überzeugt die Immobilie im Hinblick auf Bauausführung und Bauqualität.
Ein Hausmeisterdienst kümmert sich um die Pflege der gemeinschaftlichen Anlagen, eine professionelle Hausverwaltung ist ebenso bestellt. Das monatliche Hausgeld beläuft sich gemäß Wirtschaftsplan ab dem 01.01.2026 auf 371,00 € monatlich (inklusive Heizkosten / Wasser / Rücklagenbildung etc.).
Ausstattung
Gerne beschreiben wir Ihnen nachstehend die wichtigsten Details zur Innenausstattung:
+ In allen Wohn- und Schlafräumen ist ein Echtholz-Parkettbodenbelag verlegt. Ebenso im Abstellraum 1.
+ Die Küche, das Badezimmer, der Abstellraum 2 und die Balkone sind ansprechend gefliest.
+ Die neuwertige Einbauküche aus dem Jahr 2024 ist inklusive aller Elektro-Großgeräte bereits im Kaufpreis enthalten.
+ Das Badezimmer verfügt über ein großes Fenster, eine Badewanne, eine Dusche, ein WC, ein Bidet und ein Waschbecken.
+ Im Badezimmer ist eine Fußbodentemperierung vorhanden, zusätzlich sorgt ein Handtuchheizkörper für behagliche Wärme.
+ Es sind hochwertige Innentüren mit einer Ahorn-DURAT-Beschichtung verbaut.
+ Der TV-Empfang ist über eine digitale Satellitenanlage sichergestellt. Es fallen keine Kabelgebühren an.
+ Internet kann z.B. über die Telekom beantragt werden (mit bis zu 250 Mbit/s im Download und bis zu 40 Mbit/s im Upload, gem. Online-Verfügbarkeitscheck).
Es sind Kunststofffenster in der Farbe Weiß mit Isolierverglasung und Rollos verbaut. Beide Dachflächenfenster verfügen ebenfalls über Außenrollos. In der Küche und im Badezimmer können die Rollos elektrisch bedient werden.
Lage
Eine der besten Lagen in Gaimersheim - nur selten sind hier Wohnungen zum Kauf im Angebot.
Der Markt Gaimersheim liegt nordwestlich von Ingolstadt und erfreut sich großer Beliebtheit. Der Standort überzeugt durch eine sehr gute Infrastruktur vor Ort (Banken, Bäckereien, Supermärkte, Metzger, Arzt) und die hervorragende Anbindung nach Ingolstadt, welche in Kürze diverse, weitere Einkaufsmöglichkeiten etc. offeriert (z.B. moderner EDEKA am GVZ, Westpark).
Die Beliebtheit des Standorts - auch aufgrund der Nähe zur Audi AG - ist für Kapitalanleger als auch Eigennutzer gleichermaßen interessant.
Innerhalb der Wohnanlage erstreckt sich die Wohnung über das gesamte Dachgeschoss - der Zugang erfolgt über das 1. Obergeschoss durch ein innenliegendes, zur Wohnung gehörendes Treppenhaus.
Sonstiges
Es liegt ein Energieverbrauchsausweis vor.
Dieser ist gültig bis 16.1.2035.
Endenergieverbrauch beträgt 69.30 kwh/(m²*a).
Wesentlicher Energieträger der Heizung ist Gas.
Das Baujahr des Objekts lt. Energieausweis ist 2003.
Die Energieeffizienzklasse ist B.
Alle Angaben basieren auf Informationen unseres Auftraggebers. Wir übernehmen keine Gewähr für die Vollständigkeit, Richtigkeit und Aktualität dieser Angaben.
FOCUS-Magazin Top-Immobilienmakler:
2013, 2014, 2015, 2016, 2017, 2018, 2019, 2020, 2021, 2022, 2023, 2024, 2025, 2026
BELLEVUE-Magazin Best Property Agent:
2012, 2013, 2014, 2015, 2016, 2017, 2018, 2019, 2020, 2021, 2022, 2023, 2024, 2025, 2026
CAPITAL Top-Makler Wohnimmobilien:
2024, 2025, 2026
Daniel Fechner Immobilien, zertifiziert nach DIN EN 15733 (DIAZert) für Maklerdienstleistungen
FECHNER IMMOBILIEN ist Mitglied im Immobilienverband Deutschland IVD, dem Verband der Immobilienberater, Makler, Verwalter und Sachverständigen Region Süd e.V. sowie bei IMMOEBS e.V., der Verein der Ehemaligen und Förderer der Post-Graduate- und Masterstudiengänge zur Immobilienökonomie an der European Business School und der Universität Regensburg.
Kontakt aufnehmen
Gesamte Dachgeschoss-Etage - Einzelgarage, Stellplatz, neue Einbauküche, großer Keller, sofort frei!
Ansprechpartner
Daniel Fechner
Telefon: 004984188547112
Telefax: +49 841 88 54 71 -28
Wohnung zum Kauf
| Kaufpreis 399.800 € |
| Stellplatzanzahl (Garage) 1 |
| Stellplatzanzahl (Freiplatz) 1 |
| Hausgeld 371 € |
| Wohnfläche ca. 84,80 m² |
| Zimmer 4 |
| Objekt-Nr. 5236 |
Adresse
Ina-Seidel-Str. 2, 85080 Gaimersheim
Energieverbrauchsausweis
| Endenergieverbrauch 69,30 kWh/(m²*a) |
| Befeuerungsart Gas |
| Heizungsart Zentralheizung |
| Wesentlicher Energieträger GAS |
| Baujahr (Energieausweis) 2003 |
| Energieeffizienzklasse B |
| Gültig bis 16.01.2035 |
0200400+
Ausstattung
| Anzahl Badezimmer 1 |
| Anzahl Balkone 2 |
| Anzahl Schlafzimmer 3 |
| Anzahl Stellplätze 2 |
| Anzahl Wohneinheiten 5 |
| Anzahl Zimmer 4 |
| Kategorie Standard |
| Baujahr 2003 |
| Bauweise Massiv |
| Befeuerungsart Gas |
| Dachform Satteldach |
| Heizungsart Zentralheizung |
| Küche Einbauküche |
| Provisionspflichtig |
| Stellplätze 1 |
| Stellplatzpreis 7.500 € |
| Garagenanzahl 1 |
| Stellplatzpreis (Garage) 12.500 € |
| Stellplatzart Garage, Freiplatz |
| Unterkellert |
| verfügbar ab 01.01.2026 |
| Verkaufstatus offen |
| Wasch/Trockenraum |
| Zustand gepflegt |