+++MIT VIDEO+++ Neubau in Ingolstadt-Süd (Hundszell) 2-Zimmer-Etagenwohnung (1. OG) mit großer Dachterrasse (27,42m²)

offen

Video

Beschreibung

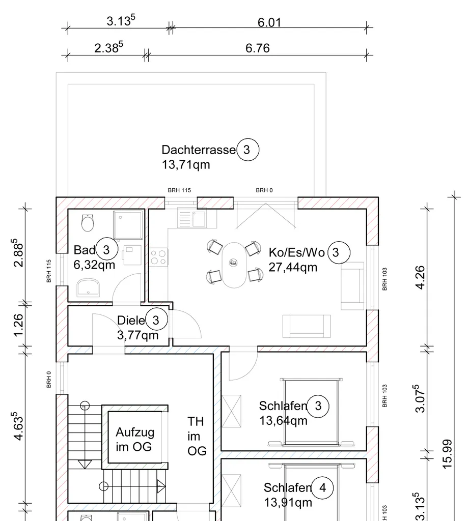
Wohnung Nr. 4 - 2 ZKB im 1. Obergeschoss (mit Aufzug) bei circa 64,88 m² Wohnfläche - Provisionsfrei für Käufer!

Willkommen in Cintura Verde – Ihrem neuen Zuhause am Stadtrand von Ingolstadt. In der ruhigen Ortsrandlage des Tiefwiesenwegs entstehen ab 2025 drei hochwertige Mehrfamilienhäuser mit insgesamt 19 exklusiven Wohneinheiten. Dieses einzigartige Projekt verbindet zeitgemäße Architektur, nachhaltiges Bauen und höchsten Wohnkomfort in einer idyllischen Umgebung. Egal ob Familie, Paar oder Bestager – hier finden Sie einen Ort, an dem Sie sich wohlfühlen und Ihr Leben genießen können.

Nachhaltiges Wohnen mit Charme und Komfort.

Cintura Verde steht für modernes Wohnen, bei dem Nachhaltigkeit, Ästhetik und Komfort perfekt miteinander harmonieren. Die drei Mehrfamilienhäuser mit insgesamt 19 Wohneinheiten werden in hochwertiger Massivbauweise. Wasserundurchlässige Stahlbetonkeller und massive Innenwände garantieren Stabilität und Langlebigkeit, während eine zusätzliche Dachgeschossdämmung aus Holzweichfaserplatten besten Hitzeschutz in den Sommermonaten bietet.

Die Wohnungen überzeugen mit durchdachten Grundrissen und lichtdurchfluteten Räumen, die durch bodentiefe Kunststofffenster mit 3-Scheiben-Isolierverglasung besonders freundlich und einladend wirken. Balkone und Terrassen schaffen Rückzugsorte, die zu entspannten Stunden in der Sonne einladen – ein Ort, um bei einer Tasse Kaffee den Tag zu begrüßen oder den Abend entspannt ausklingen zu lassen.

Für ein angenehmes Wohnklima sorgt ein dezentrales Lüftungssystem der Firma Inventer, während die Fußbodenheizung mit Einzelraumthermostaten wohlige Wärme bietet. Im Sommer nutzen Sie die komfortable Kühlfunktion, für entspanntes Wohnen und Schlafen - auch an den heißesten Tagen des Jahres. Elektrische Rollläden und barrierefreie Zugänge gewährleisten zusätzlichen Komfort, und der moderne Personenaufzug macht jede Wohnung bequem erreichbar.

Die Innenausstattung der Wohnungen kann individuell nach Ihren Wünschen gestaltet werden, von edlen Böden bis hin zu eleganten Fliesen. Die harmonische Fassadengestaltung mit dualem Farbkonzept und stilvollen Gesimsen unterstreicht die exklusive Optik der Gebäude. Egal, ob Sie ein gemütliches Zuhause für Ihre Familie suchen, als Paar das Leben genießen möchten oder einen Rückzugsort im Grünen schätzen – bei Cintura Verde finden Sie ein Zuhause, das genau zu Ihren Bedürfnissen passt.

Ein Tiefgaragenstellplatz kostet 25.000 Euro.

Ein Außenstellplatz kann - je nach Verfügbarkeit - optional für 10.000 Euro zusätzlich erworben werden.

Ausstattung

Lassen Sie sich von der Ausstattungsqualität begeistern - Sie haben spezielle Wünsche an die Innenausstattung oder den Grundriss? Je nach Baufortschritt sind Individualisierungen gerne möglich!

Highlights:

+ Fußbodenheizung mit Kühlfunktion - ideal für heiße Sommermonate.
+ Hochwertiger Silikat-Anstrich im Innenbereich - für ideales Raumklima.
+ Dezentrales Lüftungssystem der Firma Inventer - Frischluft inklusive.
+ Personenaufzug der Firma OTIS vom Kellergeschoss bis ins Dachgeschoss.
+ Bodengleiche, komfortable Duschen mit Fußbodenheizung in den Bädern.
+ Außenwasserhähne an den Terrassen und Balkonen - für kurze Wege.
+ Netzwerkanschlüsse in den Wohn- und Schlafräumen - Highspeed per LAN.
+ Massivbauweise - auch im Hinblick auf die Innenwände - kein Trockenbau.
+ Kellergeschoss aus Stahlbeton WU (wasserundurchlässig) - auf Nummer Sicher gehen.
+ Kunststofffenster mit verdeckt liegenden Beschlägen und 3-Scheiben-Isolierverglasung - energieeffizient und pflegeleicht.
+ Alle vorhandenen Rollläden sind elektrisch bedienbar - für komfortables Öffnen und Schließen.
+ Modernes Luft-Wasser-Wärmepumpen Heizsystem - heute schon an Morgen denken.
+ Hochwertige Dachstuhldämmung und zusätzliche Holzweichfaserplatte als Aufdachdämmung - idealer Hitzeschutz im Sommer.

Lage

Hundszell - ruhig, naturnah und gut angebunden!

Cintura Verde liegt im idyllischen Tiefwiesenweg am ruhigen Ortsrand von Ingolstadt, einer wenig befahrenen und familienfreundlichen Umgebung. Die Lage
besticht durch ihre harmonische Verbindung von Natur und urbaner Nähe: Hier genießen Sie die Ruhe einer verkehrsberuhigten Wohngegend und gleichzeitig den Komfort einer hervorragenden Infrastruktur.

Einkaufsmöglichkeiten, Schulen, Kindergärten und Ärzte befinden sich nur wenige Minuten entfernt und machen den Alltag unkompliziert. Auch Freizeitmöglichkeiten kommen nicht zu kurz – die umliegenden Grünflächen laden zu Spaziergängen, Fahrradtouren oder einfach zum Abschalten ein. Die Nähe zur Donau und zum Altmühltal bietet weitere Ausflugsziele für Naturliebhaber und Sportbegeisterte.

Für Pendler und Berufstätige ist die gute Verkehrsanbindung ein großer Vorteil: Der öffentliche Nahverkehr sowie wichtige Verkehrsachsen wie die Autobahn A9 und die Bundesstraße B16 sind schnell erreichbar. So sind Sie flexibel und mobil, ob in der Stadt, der Region oder darüber hinaus.

Mit seiner ruhigen Lage am Ende einer wenig befahrenen Straße bietet Cintura Verde eine perfekte Balance zwischen Erholung und Erreichbarkeit – ein Zuhause, das alles vereint, was modernes Wohnen ausmacht.

Sonstiges

Es liegt ein Energieausweis zur Besichtigung vor.

Sie haben Fragen zum Neubauvorhaben oder einer speziellen Wohnung? Sprechen Sie uns an - wir sind immer gerne für Sie da.

Auch für Ihre individuellen Wünsche an die Ausstattung oder den Grundriss haben wir immer gerne ein offenes Ohr und versuchen diese bestmöglich umzusetzen.

Bitte beachten Sie, dass es sich bei den Planunterlagen um circa Rohbaumaße handelt. Planungsstand Januar 2025 - Änderungen vorbehalten. Die Illustration der Baukörper dient der besseren Veranschaulichung. Abweichungen und Änderungen sind möglich.

Der Energieausweis liegt derzeit noch nicht vor.

Alle Angaben basieren auf Informationen unseres Auftraggebers. Wir übernehmen keine Gewähr für die Vollständigkeit, Richtigkeit und Aktualität dieser Angaben.

FOCUS-Magazin Top-Immobilienmakler:
2013, 2014, 2015, 2016, 2017, 2018, 2019, 2020, 2021, 2022, 2023, 2024

BELLEVUE-Magazin Best Property Agent:
2012, 2013, 2014, 2015, 2016, 2017, 2018, 2019, 2020, 2021, 2022, 2023, 2024

Daniel Fechner Immobilien, zertifiziert nach DIN EN 15733 (DIAZert) für Maklerdienstleistungen

FECHNER IMMOBILIEN ist Mitglied im Immobilienverband Deutschland IVD, dem Verband der Immobilienberater, Makler, Verwalter und Sachverständigen Region Süd e.V. sowie bei IMMOEBS e.V., der Verein der Ehemaligen und Förderer der Post-Graduate- und Masterstudiengänge zur Immobilienökonomie an der European Business School und der Universität Regensburg.

Ansprechpartner

Daniel Fechner

Daniel Fechner

Telefon: 004984188547112
Telefax: 004984188547128

df@fechner-immobilien.com

Kontakt aufnehmen

Wohnung zum Kauf

Kaufpreis 431.000 €
Stellplatzanzahl (Tiefgarage) 1
Stellplatzanzahl (Freiplatz) 1
Wohnfläche ca. 64,88 m²
Zimmer 2
Balkon/Terrassen Fläche ca. 27,42 m²
Objekt-Nr. 5158

Adresse

Tiefwiesenweg 8, 85051 Ingolstadt

Ausstattung

Anzahl Badezimmer 1
Anzahl Balkone 1
Anzahl Etagen 2
Anzahl Schlafzimmer 1
Anzahl Stellplätze 2
Anzahl Zimmer 2
Kategorie Gehoben
Baujahr 2025
Bauweise Massiv
Befeuerungsart Luft/Wasser-Wärmepumpe
Lage im Objekt (Etage) 1
Fahrstuhl Personen
Provisionspflichtig
Stellplätze 1
Stellplatzpreis 10.000 €
Tiefgaragenstellplätze 1
Stellplatzpreis (Tiefgarage) 25.000 €
Stellplatzart Tiefgarage, Freiplatz
Unterkellert
verfügbar ab 01.10.2025
Verkaufstatus offen
Zustand Erstbezug

Weitere Immobilienangebote

Erfolg! Vielen Dank für Ihre Bewertung.

Fehler! Bitte füllen Sie alle Felder aus.