Moderne Wohnung im 1. Obergeschoss inklusive Einbauküche und zwei Außenstellplätze in Eitensheim!

offen

Beschreibung

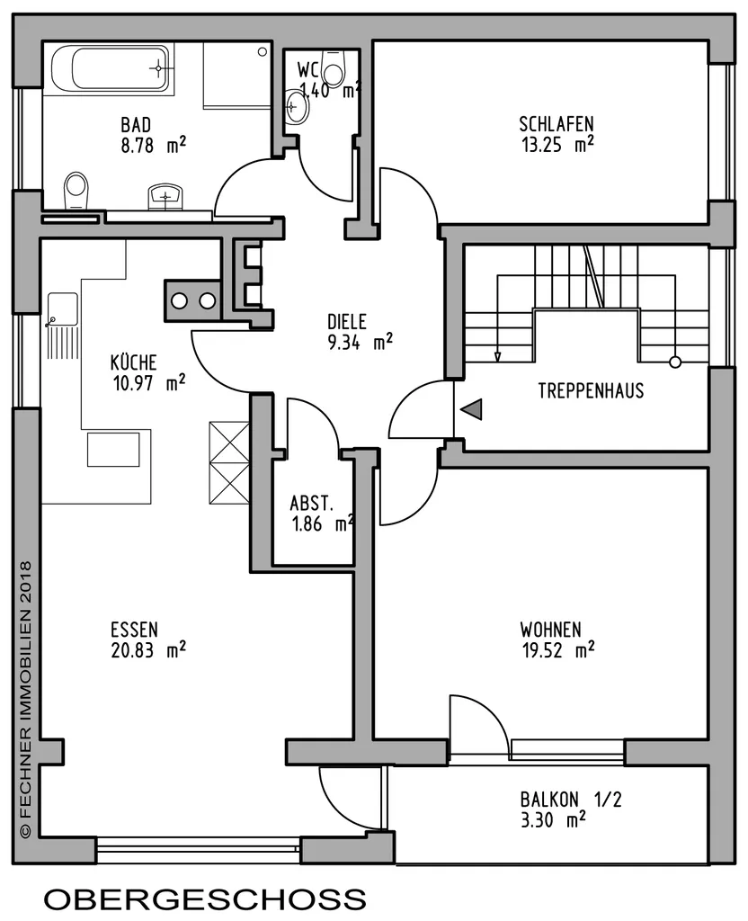
Vermietet wird eine geräumige 2,5 Zimmerwohnung im 1. Obergeschoss nordwestlich von Ingolstadt - in der Gemeinde Eitensheim.

+ nur drei Wohneinheiten im Haus
+ modern und ansprechend saniert
+ inklusive hochwertiger Einbauküche
+ Balkon / Loggia in sonniger Südausrichtung
+ zwei Stellplätze im Innenhof (à 25,- €)
+ eigenes Kellerabteil
+ Waschraum im Keller mit Stellplatz für Waschmaschine und Trockner
+ nur drei Wohneinheiten im Haus (EG, OG, DG)

Die Hausordnung teilen sich die Bewohner. Eine Mindestmietdauer von 2 Jahren wird vertraglich vereinbart. Eine Index- oder Staffelmiete ist nicht vorgesehen.

Ausstattung

Nachstehend die wichtigsten Details zur Innenausstattung:

+ Die Wohnung ist in den Wohnräumen komplett gefliest, ebenso im Badezimmer. Das Schlafzimmer ist mit einem unempfindlichen und pflegeleichten Vinyl-Bodenbelag in moderner Eiche-Optik ausgestattet.

+ Fußbodenheizung in den Wohn- und Schlafräumen sowie im Badezimmer, jeweils mit Einzelraumtemperierung

+ Moderne Kunststofffenster mit Bi-Color-Ausstatung (innen weiß / außen anthrazit) inklusive Außenrollos

+ Modernes Badezimmer mit Fenster, halbhoch gefliest und ausgestattet mit einer Badewanne, einer begehbaren Dusche mit Klarglaskabine, einem WC und einem Waschbecken

+ Eine hochwertige Einbauküche inklusive Marken-Einbaugeräten und Beleuchtung ist im Mietpreis enthalten. Die Fronten sind in weiß gehalten, die Arbeitsplatte bildet durch die dunkle Farbe einen schönen Kontrast. Ein Highlight ist z.B. der aufwendige Dunstabzug, welcher nicht an der Decke montiert ist sondern den Dunst nach unten ableitet.

Lage

Eitensheim liegt circa 20 Minuten Fahrzeit von Ingolstadt entfernt - die Nahversorgungsmöglichkeiten sind teilweise bequem im Ort oder in den umliegenden Nachbargemeinden gegeben.

Die Mietwohnung selbst befindet sich im 1. Obergeschoss und ist mit den Wohnräumen nach Süden ausgerichtet.

Sonstiges

Es liegt ein Energiebedarfsausweis vor.
Dieser ist gültig bis 3.9.2028.
Endenergiebedarf beträgt 81.00 kwh/(m²*a).
Wesentlicher Energieträger der Heizung ist Gas.
Das Baujahr des Objekts lt. Energieausweis ist 2018.
Die Energieeffizienzklasse ist C.

Alle Angaben basieren auf Informationen unseres Auftraggebers. Wir übernehmen keine Gewähr für die Vollständigkeit, Richtigkeit und Aktualität dieser Angaben.

FOCUS-Magazin Top-Immobilienmakler:
2013, 2014, 2015, 2016, 2017, 2018, 2019, 2020, 2021, 2022, 2023, 2024, 2025

BELLEVUE-Magazin Best Property Agent:
2012, 2013, 2014, 2015, 2016, 2017, 2018, 2019, 2020, 2021, 2022, 2023, 2024, 2025

Daniel Fechner Immobilien, zertifiziert nach DIN EN 15733 (DIAZert) für Maklerdienstleistungen

FECHNER IMMOBILIEN ist Mitglied im Immobilienverband Deutschland IVD, dem Verband der Immobilienberater, Makler, Verwalter und Sachverständigen Region Süd e.V. sowie bei IMMOEBS e.V., der Verein der Ehemaligen und Förderer der Post-Graduate- und Masterstudiengänge zur Immobilienökonomie an der European Business School und der Universität Regensburg.

Ansprechpartner

Daniel Fechner

Daniel Fechner

Telefon: 004984188547112
Telefax: 004984188547128

df@fechner-immobilien.com

Kontakt aufnehmen

Wohnung zur Miete

Kaltmiete 1.100 €
Nebenkosten 200 €
Heizkosten in Nebenkosten enthalten
Stellplatzmiete (Freiplatz) 25 €
Stellplatzanzahl (Freiplatz) 2
Warmmiete 1.350 € 
Kaution 3.000 €
Adresse 85117 Eitensheim
Wohnfläche ca. 89,25 m²
Zimmer 2,50
Objekt-Nr. 5190

Energiebedarfsausweis

Endenergiebedarf 81 kWh/(m²*a)
Befeuerungsart Gas
Heizungsart Zentralheizung
Wesentlicher Energieträger GAS
Baujahr (Energieausweis) 2018
Energieeffizienzklasse C
Gültig bis 03.09.2028
Energieausweis 2014

0200400+

Ausstattung

Anzahl Badezimmer 1
Anzahl Balkone 1
Anzahl Etagen 3
Anzahl Schlafzimmer 1
Anzahl Stellplätze 2
Anzahl Wohneinheiten 3
Anzahl Zimmer 2,50
Kategorie Standard
Baujahr 2018
Bauweise Massiv
Befeuerungsart Gas
Lage im Objekt (Etage) 1
Haustiere erlaubt
Heizungsart Zentralheizung
Kabel/Sat-TV
Küche Einbauküche, offene Küche
Stellplätze 2
Stellplatzmiete 25 €
Stellplatzart Freiplatz
Unterkellert
verfügbar ab 01.02.2026
Verkaufstatus offen
Wasch/Trockenraum
Zustand neuwertig

Weitere Immobilienangebote

Erfolg! Vielen Dank für Ihre Bewertung.

Fehler! Bitte füllen Sie alle Felder aus.