+++RESERVIERT+++Dieses Zweifamilienhaus (Massivbauweise) bietet viel Platz auf einem 1.798m² großen Grundstück!

reserviert

Beschreibung

Verkauft wird ein Zweifamilienhaus auf einem 1.798m² großen Grundstück in Adelschlag! Das im Jahr 1962 in Massivbauweise errichtete Gebäude ist voll unterkellert und bietet bequem Platz für 1 - 2 Familien.

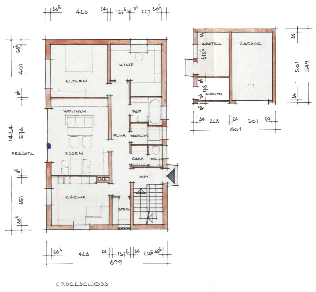
+ Es erwarten Sie circa 200,74m² Wohnfläche - verteilt auf eine 3-Zimmer-Wohnung im Erdgeschoss und eine 4-Zimmer-Wohnung im Obergeschoss.
+ Als weitere Nutzflächen stehen ein gesamtes Kellergeschoss und ein Dachspeicher zur Verfügung (direkt über das Treppenhaus zugänglich).
+ Das Grundstück überzeugt durch viel Platz. Der große Garten befindet sich in Südausrichtung - angrenzend zur Bahnlinie.
+ Zwei Einzelgaragen sind bereits vorhanden - alternativ bietet der Hofbereich viel Platz für weitere Fahrzeuge.
+ Geheizt wird derzeit über eine Öl-Zentralheizung, welche im Jahr 1995 neu installiert wurde.
+ Zu den letzten Modernisierungsmaßnahmen zählen der Einbau neuer Kunststofffenster in den Jahren 2009 und 2024.

Eine Immobilie - ideal für junge Familien oder generationenübergreifendes Wohnen. Wir freuen uns Sie beraten zu dürfen!

Ausstattung

Gerne beschreiben wir Ihnen nachstehend kurz die wichtigsten Details zur Innenausstattung der Immobilie.

+ Es sind weiße Kunststofffenster mit Isolierverglasung verbaut. Diese wurden auf der Ost, West und Nordseite im Jahr 2009 erneuert.
+ Auf der Südseite sind ebenfalls weiße Kunststofffenster mit 3-Scheiben-Isolierverglasung verbaut, diese wurden im Jahr 2024 installiert.
+ Die Fenster auf der Südseite haben durch ein Förderprogramm der Deutschen Bahn eine Schallschutzverglasung erhalten.

Beide auf den Fotos ersichtlichen Einbauküchen sind im Kaufpreis bereits enthalten. Die Immobilie befindet sich in einem generell gepflegten Zustand - wird aber sicherlich durch die neuen Eigentümern an die eigenen Wünsche und Anforderungen im Hinblick auf die Innenausstattung angepasst.

+ Im Haus befinden sich verschiedene Bodenbeläge - im Erdgeschoss überwiegend Parkettbodenbelag, Fliesen und Teppich. Im Obergeschoss sind auch Laminatböden vorhanden.

+ Geheizt wird derzeit über eine Öl-Zentralheizung aus dem Jahr 1995. Im Erdgeschoss befindet sich zusätzlich ein Schwedenofen.

Lage

Das Zweifamilienhaus befindet sich in der Gemeinde Adelschlag im oberbayerischen Landkreis Eichstätt. Die Immobilie liegt in einem ruhigen Wohngebiet mit überwiegend Ein- und Zweifamilienhäusern. Die Umgebung ist geprägt von einer ländlichen Struktur mit guter Anbindung an die umliegenden Städte.

Adelschlag verfügt über eine Grundversorgung mit Einrichtungen des täglichen Bedarfs. Weitere Einkaufsmöglichkeiten, Schulen, Ärzte und sonstige Infrastruktur sind in den nahegelegenen Städten Eichstätt (ca. 10 km) und Ingolstadt (ca. 25 km) erreichbar. Die Anbindung an das überregionale Straßennetz erfolgt über die Bundesstraße B13.

Der Standort bietet eine naturnahe Wohnlage mit gleichzeitig guter Erreichbarkeit der regionalen Zentren. Der Garten ist nach Süden ausgerichtet -
an der südlichen Grundstücksgrenze befindet sich ein Bahngleis.

Sonstiges

Es liegt ein Energiebedarfsausweis vor.
Dieser ist gültig bis 7.9.2033.
Endenergiebedarf beträgt 362.80 kwh/(m²*a).
Wesentlicher Energieträger der Heizung ist Öl.
Das Baujahr des Objekts lt. Energieausweis ist 1962.
Die Energieeffizienzklasse ist H.

Alle Angaben basieren auf Informationen unseres Auftraggebers. Wir übernehmen keine Gewähr für die Vollständigkeit, Richtigkeit und Aktualität dieser Angaben.

FOCUS-Magazin Top-Immobilienmakler:
2013, 2014, 2015, 2016, 2017, 2018, 2019, 2020, 2021, 2022, 2023, 2024, 2025

BELLEVUE-Magazin Best Property Agent:
2012, 2013, 2014, 2015, 2016, 2017, 2018, 2019, 2020, 2021, 2022, 2023, 2024

Daniel Fechner Immobilien, zertifiziert nach DIN EN 15733 (DIAZert) für Maklerdienstleistungen

FECHNER IMMOBILIEN ist Mitglied im Immobilienverband Deutschland IVD, dem Verband der Immobilienberater, Makler, Verwalter und Sachverständigen Region Süd e.V. sowie bei IMMOEBS e.V., der Verein der Ehemaligen und Förderer der Post-Graduate- und Masterstudiengänge zur Immobilienökonomie an der European Business School und der Universität Regensburg.

Ansprechpartner

Daniel Fechner

Daniel Fechner

Telefon: 004984188547112
Telefax: 004984188547128

df@fechner-immobilien.com

Kontakt aufnehmen

Haus zum Kauf

Kaufpreis 536.800 €
Stellplatzanzahl (Garage) 2
Adresse 85111 Adelschlag
Wohnfläche ca. 200,74 m²
Zimmer 6
Grundstücksfläche ca. 1.798 m²
Objekt-Nr. 5179

Energiebedarfsausweis

Endenergiebedarf 362,80 kWh/(m²*a)
Befeuerungsart Öl
Heizungsart Zentralheizung
Wesentlicher Energieträger OEL
Baujahr (Energieausweis) 1962
Energieeffizienzklasse H
Gültig bis 07.09.2033

0200400+

Ausstattung

Anzahl Badezimmer 2
Anzahl Schlafzimmer 4
Anzahl Stellplätze 2
Anzahl Terrassen 1
Anzahl Zimmer 6
Kategorie Standard
Baujahr 1962
Bauweise Massiv
Befeuerungsart Öl
Dachform Satteldach
Gartennutzung
Heizungsart Zentralheizung
Küche Einbauküche
Provisionspflichtig
Garagenanzahl 2
Stellplatzart Garage
Unterkellert
verfügbar ab nach Absprache
Verkaufstatus reserviert
Wasch/Trockenraum
Zustand gepflegt

Weitere Immobilienangebote

Erfolg! Vielen Dank für Ihre Bewertung.

Fehler! Bitte füllen Sie alle Felder aus.