+++RESERVIERT+++Wohnen und Arbeiten vereint! Komfortables Platzangebot auf drei Etagen - sehr große Doppelgarage!
Beschreibung
Verkauft wird ein Haus, dass durch seine vielseitigen Nutzungsmöglichkeiten überzeugt! Besonders alle, die den Wunsch nach einem großen Platzangebot verspüren, sind hier richtig. Ursprünglich im Jahr 2006 errichtet, wurde die Immobilie zuletzt im Jahr 2011 um ein Wärmedämmverbundsystem (WDVS) erweitert. Der aktuelle Endenergieverbrauchswert liegt bei geringen 45,10 kWh/(m²*a), was einer Energieeffizienzklasse von "A" entspricht.
Die Immobilie verfügt über zwei Eingänge (links & rechts, siehe Foto). Über die linke Türe gelangen Sie zu einem hochwertig ausgebautem Untergeschoss (Nutzfläche), über die rechte Türe gelangen Sie in den Hauptwohnbereich der Immobilie (Wohnfläche). Die beiden Bereiche sind im Inneren verbunden und somit bequem zugänglich.
+ Nutzfläche im Untergeschoss gesamt circa 74,61m² (inkl. zweitem Badezimmer & separatem WC - ideal auch als Homeoffice).
+ Wohnfläche im Haupthaus gesamt circa 139,52m². Hierbei wurde die Terrasse nicht anteilig mit berücksichtigt.
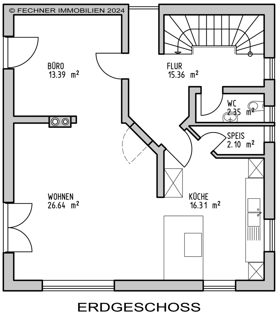
+ Verfügbar sind im Haupthaus derzeit drei Schlafzimmer, ein großer Wohn- und Essbereich und ein angrenzender Arbeitsbereich.
Besonders praktisch ist die gemauerte Doppelgarage! Auf circa 51,20m² bietet sich viel Platz für Fahrzeuge, Hobby und Handwerk! Daneben können auf dem eigenen Grundstück noch bequem zwei weitere Fahrzeuge im Freien geparkt werden, ohne dass die Zufahrt zur Garage blockiert ist.
+ Bereits im Kaufpreis enthalten sind die hochwertige Einbauküche (Baujahr 2012), der Schwedenofen und das fest verbaute Bad-Mobiliar.
Ausstattung
Gerne beschreiben wir Ihnen nachstehend einige Details zur Innenausstattung der Immobilie.
+ Es sind weiße Kunststofffenster mit 2-Scheiben-Isolierverglasung und Rollos verbaut (überwiegend).
+ Es sind Laminat-, Granit-, und Fliesenböden in den Wohn- und Schlafräumen verlegt (siehe Fotos).
+ Die Einbauküche ist inklusive aller üblichen Elektro-Großgeräte bereits im Kaufpreis enthalten.
+ Geheizt wird über eine Gas-Zentralheizung mit Brennwerttechnik und solarer Warmwasserunterstützung.
+ Besonders angenehm ist die vorhandene Enthärtungsanlage im Kellergeschoss (wunschweise weiches Wasser).
+ Das Haupt-Badezimmer verfügt über eine Badewanne und eine Dusche - hier ist auch eine Fußbodenheizung verlegt.
+ Das zweite Badezimmer im Keller- bzw. Untergeschoss verfügt über eine Dusche.
+ Alle Innentüren sind zeitlos in der Farbe Weiß gehalten.
+ Doppelgarage inklusive drei Starkstrom-Steckdosen.
Besonderes Highlight: In Oberhausen ist ein Glasfaseranschluss über die Deutsche Glasfaser Holding GmbH möglich.
Lage
Oberhausen, im Landkreis Neuburg an der Donau gelegen, bietet eine attraktive Mischung aus ländlichem Charme und guter Anbindung an städtische Zentren. Die Gemeinde ist besonders für Paare und junge Familien geeignet, die eine ruhige Umgebung suchen, ohne auf eine gute Erreichbarkeit größerer Städte verzichten zu müssen.
Verkehrsanbindung und Infrastruktur:
Oberhausen zeichnet sich durch eine gute Verkehrsanbindung aus. Über die B16 sind Neuburg an der Donau (ca. 10 km) und Ingolstadt (ca. 35 km) schnell erreichbar. Die Autobahn A9 ist ebenfalls in etwa 30 Minuten zu erreichen, was schnelle Verbindungen nach München (ca. 80 km) oder Nürnberg (ca. 120 km) ermöglicht. Der Bahnhof Neuburg bietet zudem eine gute Anbindung an den regionalen Zugverkehr. Einkaufsmöglichkeiten finden sich in Neuburg. Schulen und Kindergärten sind ebenfalls in der näheren Umgebung.
Schulen in der Nähe:
Grundschule Oberhausen – direkt in Oberhausen
Mittelschule Neuburg an der Donau – ca. 10 km entfernt
Gymnasium Neuburg an der Donau – ca. 10 km entfernt
Realschule Neuburg an der Donau – ca. 10 km entfernt
Fachoberschule Neuburg an der Donau – ca. 10 km entfernt
Kindergärten in der Nähe:
Kindergarten Oberhausen – direkt in Oberhausen
Katholischer Kindergarten St. Michael – direkt in Oberhausen
Städtischer Kindergarten Neuburg – ca. 10 km entfernt
Kindergarten "Regenbogen" Neuburg – ca. 10 km entfernt
Im Grundstück selbst ist die Immobilie überwiegend nach Süden- und Westen ausgerichtet.
Sonstiges
Es liegt ein Energieverbrauchsausweis vor.
Dieser ist gültig bis 20.11.2034.
Endenergieverbrauch beträgt 45.10 kwh/(m²*a).
Wesentlicher Energieträger der Heizung ist Gas.
Das Baujahr des Objekts lt. Energieausweis ist 2006.
Die Energieeffizienzklasse ist A.
Alle Angaben basieren auf Informationen unseres Auftraggebers. Wir übernehmen keine Gewähr für die Vollständigkeit, Richtigkeit und Aktualität dieser Angaben.
FOCUS-Magazin Top-Immobilienmakler:
2013, 2014, 2015, 2016, 2017, 2018, 2019, 2020, 2021, 2022, 2023, 2024
BELLEVUE-Magazin Best Property Agent:
2012, 2013, 2014, 2015, 2016, 2017, 2018, 2019, 2020, 2021, 2022, 2023, 2024
Daniel Fechner Immobilien, zertifiziert nach DIN EN 15733 (DIAZert) für Maklerdienstleistungen
FECHNER IMMOBILIEN ist Mitglied im Immobilienverband Deutschland IVD, dem Verband der Immobilienberater, Makler, Verwalter und Sachverständigen Region Süd e.V. sowie bei IMMOEBS e.V., der Verein der Ehemaligen und Förderer der Post-Graduate- und Masterstudiengänge zur Immobilienökonomie an der European Business School und der Universität Regensburg.
Kontakt aufnehmen
+++RESERVIERT+++Wohnen und Arbeiten vereint! Komfortables Platzangebot auf drei Etagen - sehr große Doppelgarage!
Ansprechpartner
Daniel Fechner
Telefon: +49 (841) 88 54 71 12
Telefax: +49 (841) 88 54 71 28
Haus zum Kauf
| Kaufpreis 729.800 € |
| Stellplatzanzahl (Garage) 2 |
| Stellplatzanzahl (Freiplatz) 2 |
| Adresse 86697 Oberhausen |
| Wohnfläche ca. 139,52 m² |
| Zimmer 5 |
| Nutzfläche ca. 74,61 m² |
| Gesamtfläche ca. 214,13 m² |
| Grundstücksfläche ca. 751 m² |
| Objekt-Nr. 5075 |
Energieverbrauchsausweis
| Endenergieverbrauch 45,10 kWh/(m²*a) |
| Befeuerungsart Gas |
| Heizungsart Zentralheizung |
| Wesentlicher Energieträger GAS |
| Baujahr (Energieausweis) 2006 |
| Energieeffizienzklasse A |
| Gültig bis 20.11.2034 |
| Energieausweis 2014 |
0200400+
Ausstattung
| Anzahl Badezimmer 2 |
| Anzahl Etagen 3 |
| Anzahl Schlafzimmer 3 |
| Anzahl separate WCs 2 |
| Anzahl Stellplätze 4 |
| Anzahl Terrassen 1 |
| Anzahl Zimmer 5 |
| Kategorie Standard |
| Baujahr 2006 |
| Bauweise Massiv |
| Befeuerungsart Gas |
| Gäste-WC |
| Gartennutzung |
| Heizungsart Zentralheizung |
| Kabel/Sat-TV |
| Küche Einbauküche, offene Küche |
| Provisionspflichtig |
| Stellplätze 2 |
| Garagenanzahl 2 |
| Stellplatzart Garage, Freiplatz |
| Unterkellert |
| verfügbar ab nach Absprache |
| Verkaufstatus verkauft |
| Wasch/Trockenraum |
| Zustand gepflegt |