Traumhafte Erdgeschosswohnung - nur 4 Parteien - ausgebautes Kellergeschoss - ruhige Lage IN-Südost

offen

Beschreibung

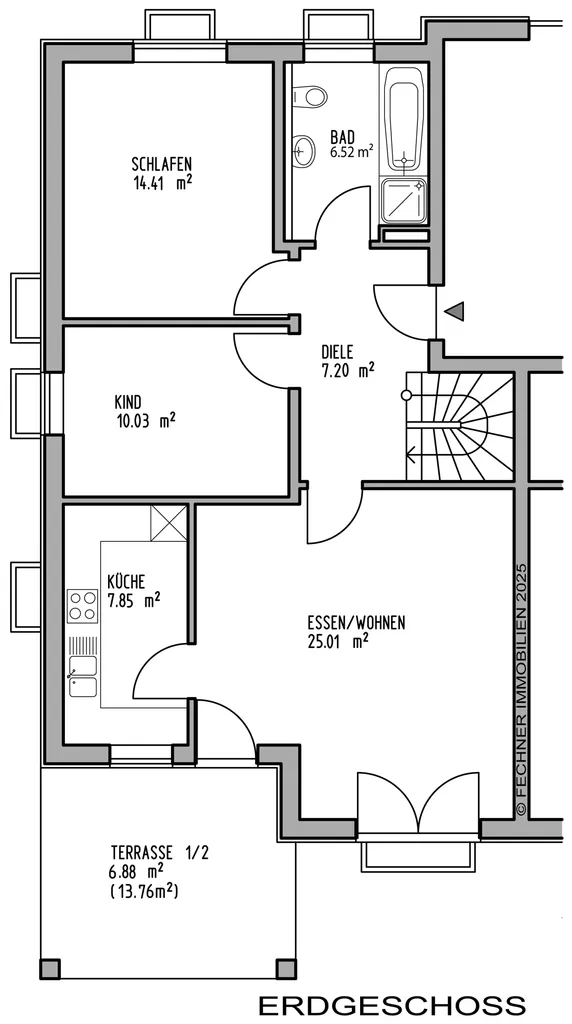
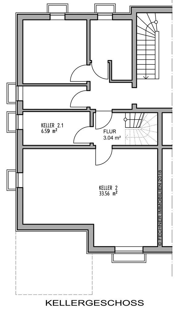
Vermietet wird eine 3-Zimmer-Erdgeschosswohnung mit zusätzlich ausgebautem Kellergeschoss. Über eine Treppe erreichen Sie dort einen sehr großen Hobbyraum und einen praktischen Kellerraum. Ideal ist auch der direkte Weg über das Untergeschoss in den angrenzenden Wasch- und Trockenraum mit eigenen Stellplätzen für Ihre Waschmaschine und Ihren Trockner. Das Mehrfamilienhaus beherbergt insgesamt nur vier Wohneinheiten.

+ 3 ZKB im Erdgeschoss mit ausgebautem Untergeschoss
+ 1 großer Kellerraum im Untergeschoss, direkt über die Wohnung zugänglich - ideal als Hobbyraum, beheizt
+ 1 weiterer Kellerraum im Untergeschoss, direkt über die Wohnung zugänglich - ebenso beheizt
+ großer Gartenanteil in Südwest-Ausrichtung
+ Fußbodenheizung mit Einzelraumthermostaten
+ Lüftungsanlage
+ Einzelgarage

Ein Hausmeisterdienst ist vorhanden und kümmert sich um die Pflege der gemeinschaftlichen Anlagen. Die Gartenpflege ist vom Mieter selbst durchzuführen. Bitte beachten Sie, dass eine Mindestmietdauer von 2 Jahren gewünscht ist. Eine Staffel- oder Indexmiete sind nicht vorgesehen.

Die Einbauküche als auch weiteres Inventar können auf Wunsch ganz oder teilweise von den aktuellen Mietern abgelöst werden. Konkret stehen zur Verfügung:

- Einbauküche samt Geräten
- Vorhangstangen in Kinder- und Schlafzimmer
- Rafrollo im Bad
- Spiegelschrank im Bad
- Kleiderschrank im Schlafzimmer
- seitliche Lampe im Treppenhaus
- Sandkasten, Kompost und Hochbeete im Garten
- eingepasstes Regal im Abstellraum im Keller

Ausstattung

Bodenbeläge:

In allen Wohn- und Schlafräumen ist ein pflegeleichter Vinylbodenbelag in Holzparkettoptik verlegt. Das Bad und der Eingangsbereich sind dunkel gefliest.

Fenster / Rollos / Innentüren:

Alle Wohn- und Schlafräume verfügen über weiße Kunststofffenster mit Isolierverglasung und Rollos. Die Innentüren sind ebenso in der Farbe Weiß gehalten.

Badezimmer:

Das Bad verfügt über ein Fenster. Eine Badewanne und eine Dusche sind vorhanden.

TV / Internet:

Etwaige Kabelgebühren sind nicht in den Betriebskostenvorauszahlungen enthalten. Ein Kabelanschluss kann vom Mieter auf Wunsch selbst beantragt werden. Das Gleiche gilt für den Telefon- und Internetanschluss.

Einbauküche:

Die sehr gepflegte und perfekt eingepasste Einbauküche kann auf Wunsch von der aktuellen Mieterin abgelöst werden.

Lage

Die Wohnung befindet sich im Ingolstädter Südosten (Stadtbezirk Kothau) in einem ruhigen und gewachsenen Wohngebiet.

Der Standort bietet eine sehr gute Infrastruktur im Hinblick auf

+ kurze Wege in die Innenstadt, zum Beispiel mit dem Fahrrad
+ gute Anbindung an den ÖPNV
+ gute Anbindung an den Hauptbahnhof Ingolstadt für Pendler
+ sehr gute Nahversorgungsmöglichkeiten (Supermarkt, Bäckerei, Metzger etc.)

Die Erdgeschosswohnung ist nach Südwesten ausgerichtet - es ist dementsprechend sonnig, insbesondere im Garten.

Sonstiges

Es liegt ein Energieverbrauchsausweis vor.
Dieser ist gültig bis 10.9.2031.
Endenergieverbrauch beträgt 61.30 kwh/(m²*a).
Wesentlicher Energieträger der Heizung ist Gas.
Das Baujahr des Objekts lt. Energieausweis ist 2009.
Die Energieeffizienzklasse ist B.

Alle Angaben basieren auf Informationen unseres Auftraggebers. Wir übernehmen keine Gewähr für die Vollständigkeit, Richtigkeit und Aktualität dieser Angaben.

FOCUS-Magazin Top-Immobilienmakler:
2013, 2014, 2015, 2016, 2017, 2018, 2019, 2020, 2021, 2022, 2023, 2024, 2025

BELLEVUE-Magazin Best Property Agent:
2012, 2013, 2014, 2015, 2016, 2017, 2018, 2019, 2020, 2021, 2022, 2023, 2024

Daniel Fechner Immobilien, zertifiziert nach DIN EN 15733 (DIAZert) für Maklerdienstleistungen

FECHNER IMMOBILIEN ist Mitglied im Immobilienverband Deutschland IVD, dem Verband der Immobilienberater, Makler, Verwalter und Sachverständigen Region Süd e.V. sowie bei IMMOEBS e.V., der Verein der Ehemaligen und Förderer der Post-Graduate- und Masterstudiengänge zur Immobilienökonomie an der European Business School und der Universität Regensburg.

Ansprechpartner

Lena Wilczek

Lena Wilczek

Telefon: 004984188547114
Telefax: 004984188547128

lw@fechner-immobilien.com

Kontakt aufnehmen

Wohnung zur Miete

Kaltmiete 1.100 €
Nebenkosten 290 €
Heizkosten in Nebenkosten enthalten
Stellplatzmiete (Garage) 70 €
Stellplatzanzahl (Garage) 1
Warmmiete 1.460 € 
Kaution 3.500 €
Adresse 85053 Ingolstadt
Wohnfläche ca. 78 m²
Zimmer 4
Nutzfläche ca. 121 m²
Gartenfläche ca. 110 m²
Objekt-Nr. 5172

Energieverbrauchsausweis

Endenergieverbrauch 61,30 kWh/(m²*a)
Befeuerungsart Gas
Heizungsart Fußbodenheizung
Wesentlicher Energieträger GAS
Baujahr (Energieausweis) 2009
Energieeffizienzklasse B
Gültig bis 10.09.2031
Energieausweis 2014

0200400+

Ausstattung

Anzahl Badezimmer 1
Anzahl Schlafzimmer 2
Anzahl Stellplätze 1
Anzahl Terrassen 1
Anzahl Zimmer 4
Kategorie Standard
Baujahr 2009
Bauweise Massiv
Befeuerungsart Gas
Gartennutzung
Haustiere erlaubt
Heizungsart Fußbodenheizung
Garagenanzahl 1
Stellplatzmiete (Garage) 70 €
Stellplatzart Garage
Unterkellert
verfügbar ab 01.12.2025
Verkaufstatus offen
Wasch/Trockenraum
Zustand gepflegt

Weitere Immobilienangebote

Erfolg! Vielen Dank für Ihre Bewertung.

Fehler! Bitte füllen Sie alle Felder aus.