+++VERKAUFT+++ Einfamilienhaus mit großem Garten und ausgebautem Dachgeschoss (2. Bad / Küche) in Hitzhofen!
Beschreibung
Verkauft wird ein sehr gepflegtes Einfamilienhaus in Hitzhofen. Die Immobilie wurde in Massivbauweise errichtet und ist voll unterkellert. Der Dachgeschossausbau wurde 2009 genehmigt und umgesetzt (inkl. umfangreicher Dachdämmung). Hier befindet sich hochwertig nutzbarer Wohnraum mit zweitem Badezimmer und eigener Küche. Eine Umwandlung in ein Zweifamilienhaus ist denkbar - perfekt eignet sich die Immobilie derzeit für Familien mit Kindern im jugendlichen oder erwachsenen Alter.
+ Die Grundstücksgröße beträgt großzügige 900 Quadratmeter.
+ Die Wohnfläche beträgt circa 213,69 Quadratmeter - es handelt sich um die Fläche innerhalb der Immobilie ohne anteilige Terrasse/Dachterrasse.
+ Im Erdgeschoss befinden sich 3-Zimmer, eine Küche, ein Bad, eine Speisekammer und die Südterrasse mit Zugang in den großen Garten.
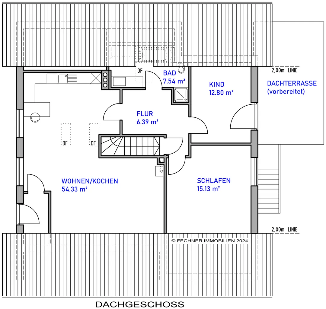
+ Im Dachgeschoss befinden sich weitere 3-Zimmer, eine Küche und ein Bad sowie (vorbereitet) der Zugang zu einer möglichen Dachterrasse.
+ Dank der Unterkellerung der Immobilie bietet sich hier viel weiterer Stauraum.
In den letzten Jahren wurde die Immobilie stets vorbildlich gepflegt und teilweise modernisiert.
+ Erneuerung der Innentüren.
+ Erneuerung des alten Badezimmers und WC's im Jahr 2020.
+ Überwiegende Erneuerung aller Fenster auf moderne und hochwertige Holz-Alu-Fenster mit 2-Scheiben-Isolierverglasung.
+ Sehr gepflegter Zustand der Fassade, letzter Anstrich vor circa 10 Jahren.
Geheizt wird derzeit über eine Öl-Zentralheizung, welche sich im Kellergeschoss befindet. Die Heizung entspricht noch dem Ursprungsbaujahr (1981). Auch wenn das Heizsystem problemlos funktioniert, ist über eine Modernisierung nachzudenken. Gerne beraten wir Sie zu den denkbaren Optionen.
HIGHLIGHT: Das Haus verfügt bereits über eine Fußbodenheizung im Erd- und Dachgeschoss. Neben der Fußbodenheizung wurden im Erdgeschoss zusätzlich Heizkörper installiert - je nach persönlicher Vorliebe kann über die Fußbodenheizung oder die Heizkörper geheizt werden. Für Liebhaber von Kaminöfen stehen ein Kachelofen im Erdgeschoss und ein Schwedenofen im Dachgeschoss bereit. Der Kachelofen ist derzeit stillgelegt.
Auf dem Grundstück befindet sich eine Einzelgarage mit direktem Gartenzugang und drei weitere Carports. Von den drei Carports können zwei als zusätzliche Stellplätze genutzt werden. Das dritte Carport dien der Aufbewahrung von Gartengeräten etc.
Ausstattung
Gerne beschreiben wir Ihnen nachstehend einige Details zur Innenausstattung der Immobilie.
+ Es sind moderne Holz-Alu-Fenster verbaut, mit 2-Scheiben-Isolierverglasung und Rollos, überwiegend elektrisch.
+ Die Innentüren sind aus Holz gefertigt (helle Optik), mit pflegeleichter Beschichtung.
+ Im Haus befinden sich als Bodenbeläge Fliesen, Laminat und Jura-Marmor.
Im Erdgeschoss wurde das neue Badezimmer mit einer Eckbadewanne, einer begehbaren Dusche und einem Waschtisch ausgestattet. Ein Fenster ist vorhanden. Im daneben befindlichen WC ist ebenfalls ein kleiner Waschtisch installiert. Auch hier ist ein Fenster vorhanden. Das Badezimmer im Dachgeschoss verfügt ebenfalls über eine Badewanne, eine Dusche, ein WC, einen Waschtisch und ein Dachflächenfenster.
+ Im Außenbereich bietet ein großzügiges Gartenhaus Stauraum für Gartengeräte, die Holzaufbewahrung etc.
Lage
Hitzhofen ist eine Gemeinde im oberbayrischen Landkreis Eichstätt, welche aus den Ortsteilen Hitzhofen, Hofstetten und Oberzell, besteht. Ingolstadt ist circa 20 Minuten Fahrtzeit entfernt. Die Nahversorgungsmöglichkeiten sind bestens gegeben im neu errichteten Gewerbegebiet in der Nachbarortschaft Eitensheim.
Für Familien bietet die Gemeinde Betreuungsmöglichkeiten für unter Dreijährige, zudem zwei Kindergärten und eine Grundschule mit Mittagsbetreuung. Weiterführende Schulen sind in Ingolstadt, Gaimersheim und Eichstätt vorhanden. Ein buntes Vereinsleben ist gegeben (Blaskapelle, Schützenverein, Freiwillige Feuerwehr, Sportvereine etc.).
Innerhalb des Grundstücks befindet sich der Hauseingang / die Zufahrt auf der Nordseite. Die Terrasse ist nach Süden ausgerichtet, der Garten verläuft umlaufend und erstreckt sich insbesondere in den Westen.
Sonstiges
Es liegt ein Energieverbrauchsausweis vor.
Dieser ist gültig bis 21.7.2034.
Endenergieverbrauch beträgt 106.30 kwh/(m²*a).
Wesentlicher Energieträger der Heizung ist Öl.
Das Baujahr des Objekts lt. Energieausweis ist 1981.
Die Energieeffizienzklasse ist D.
Alle Angaben basieren auf Informationen unseres Auftraggebers. Wir übernehmen keine Gewähr für die Vollständigkeit, Richtigkeit und Aktualität dieser Angaben.
FOCUS-Magazin Top-Immobilienmakler:
2013, 2014, 2015, 2016, 2017, 2018, 2019, 2020, 2021, 2022, 2023, 2024
BELLEVUE-Magazin Best Property Agent:
2012, 2013, 2014, 2015, 2016, 2017, 2018, 2019, 2020, 2021, 2022, 2023, 2024
Daniel Fechner Immobilien, zertifiziert nach DIN EN 15733 (DIAZert) für Maklerdienstleistungen
FECHNER IMMOBILIEN ist Mitglied im Immobilienverband Deutschland IVD, dem Verband der Immobilienberater, Makler, Verwalter und Sachverständigen Region Süd e.V. sowie bei IMMOEBS e.V., der Verein der Ehemaligen und Förderer der Post-Graduate- und Masterstudiengänge zur Immobilienökonomie an der European Business School und der Universität Regensburg.
Kontakt aufnehmen
+++VERKAUFT+++ Einfamilienhaus mit großem Garten und ausgebautem Dachgeschoss (2. Bad / Küche) in Hitzhofen!
Ansprechpartner
Daniel Fechner
Telefon: 004984188547112
Telefax: +49 841 88 54 71 -28
Haus zum Kauf
| Kaufpreis 789.800 € |
| Stellplatzanzahl (Garage) 1 |
| Stellplatzanzahl (Carport) 1 |
| Adresse 85122 Hitzhofen |
| Wohnfläche ca. 213,69 m² |
| Zimmer 6 |
| Grundstücksfläche ca. 900 m² |
| Objekt-Nr. 5065 |
Energieverbrauchsausweis
| Endenergieverbrauch 106,30 kWh/(m²*a) |
| Befeuerungsart Öl |
| Heizungsart Fußbodenheizung |
| Wesentlicher Energieträger OEL |
| Baujahr (Energieausweis) 1981 |
| Energieeffizienzklasse D |
| Gültig bis 21.07.2034 |
0200400+
Ausstattung
| Anzahl Schlafzimmer 4 |
| Anzahl separate WCs 1 |
| Anzahl Stellplätze 2 |
| Anzahl Terrassen 1 |
| Anzahl Zimmer 6 |
| Kategorie Standard |
| Baujahr 1981 |
| Bauweise Massiv |
| Befeuerungsart Öl |
| Dachform Satteldach |
| Gäste-WC |
| Gartennutzung |
| Heizungsart Fußbodenheizung |
| Küche Einbauküche, offene Küche |
| Provisionspflichtig |
| Carportplätze 1 |
| Garagenanzahl 1 |
| Stellplatzart Garage, Carport |
| Unterkellert |
| verfügbar ab nach Absprache |
| Verkaufstatus verkauft |
| Wasch/Trockenraum |
| Zustand modernisiert |