+++VERKAUFT+++Sofort verfügbar! Großzügiges Einfamilienhaus auf einem ebenso großen Grundstück in ruhiger Lage!
Beschreibung
+++ Provisionsfrei für Käufer +++
Verkauft wird ein großzügiges Einfamilienhaus in ruhiger Lage des zentrumsnahen Ingolstädter Südostens.
+ Insgesamt 6,5 ZKB bei circa 170m² Wohnfläche (ohne anteilige Terrassen-/Balkonflächen!).
+ Komfortable 997m² Grundstücksgröße mit Garten in Südausrichtung.
+ Eine Doppelgarage ist vorhanden (zusätzlich voll unterkellert).
+ Weitere Stellplätze sind auf der Grundstückszufahrt vorhanden.
+ Zwei Badezimmer und ein Gäste-WC sind vorhanden.
+ In Massivbauweise errichtet und voll unterkellert.
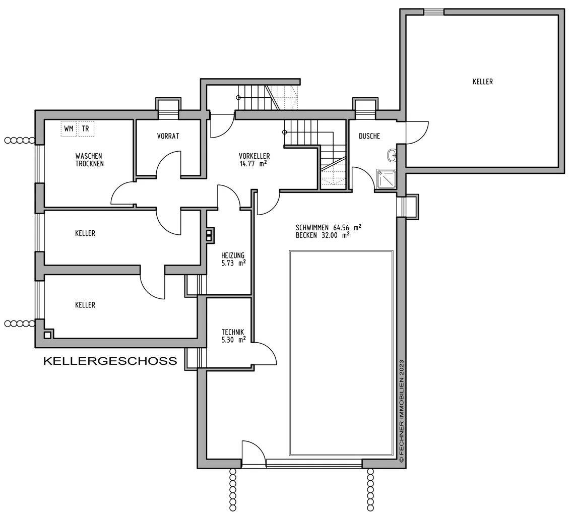
Im Kellergeschoss steht ein großer, tagesheller Hobbyraum zur Verfügung - ein Schwimmbad ist hier bereits vorbereitet. Die Immobilie befindet sich in einem insgesamt guten Allgemeinzustand, entspricht aber im Hinblick auf die Innenausstattung noch dem Baujahr. Insofern ist eine Renovierung / Modernisierung empfehlenswert.
Ausstattung
Das Haus entspricht im Hinblick auf die Innenausstattung dem Baujahr.
+ Braune Holzinnentüren und braune Holzfenster mit Isolierverglasung (2-fach) und Rollos.
+ Ein Badezimmer mit Badewanne, Dusche, WC, Bidet, Doppel-Waschtisch und Fenster.
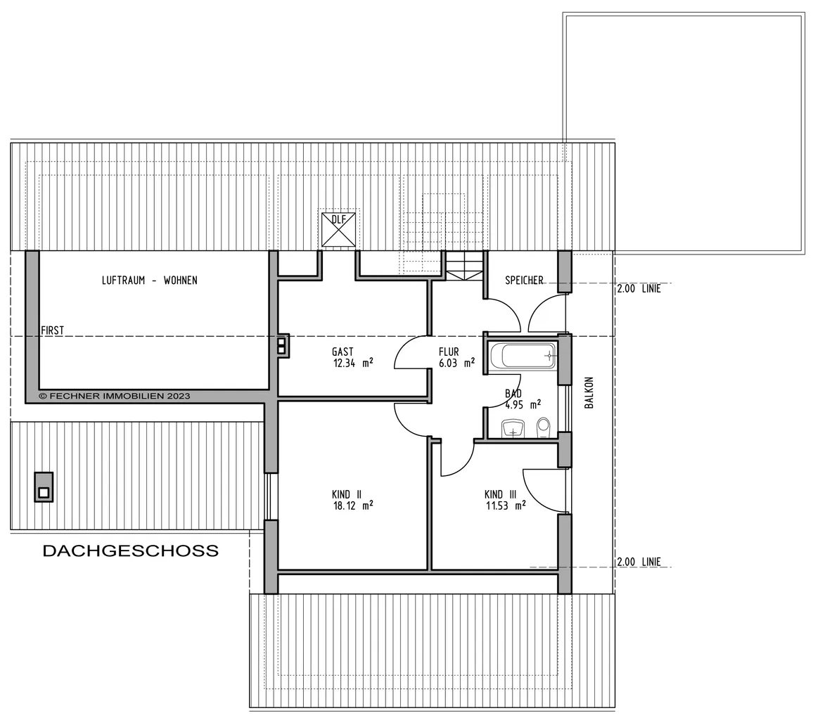
+ Ein zweites Badezimmer im Dachgeschoss mit Dusche, WC, Doppel-Waschtisch und Fenster.
+ Eine weitere Duschgelegenheit steht im Kellergeschoss zur Verfügung.
+ Ein Gäste-WC im Erdgeschoss mit Waschbecken und Fenster.
Im Haus befinden sich im Erdgeschoss überwiegend dunkle Bodenfliesen. Im Bereich der Fliesen ist eine Fußbodenheizung installiert. Die Schlafräume sind überwiegend mit alten Teppichbodenbelägen ausgestattet, ein Schlafzimmer verfügt bereits über einen Laminatbodenbelag. In den Schlafräumen und im Dachgeschoss sind herkömmliche Heizkörper installiert.
Der im Wohnzimmer befindliche Kachelofen darf ohne einen neuen Filter / Einsatz nicht weiter betrieben werden. Der im Wintergarten befindliche offene Kamin darf laut Kaminkehrer eingeschränkt genutzt werden.
Internet / TV:
Ein Kabelanschluss ist vorhanden - schnelles Internet ist z.B. über die Telekom möglich (gem. Online-Verfügbarkeitscheck vom 05.08.2023 mit bis zu 250 Mbit/s im Download und bis zu 40 Mbit/s im Upload).
Lage
Das Grundstück / die Immobilie befindet sich im Ingolstädter Südosten.
+ ruhig gelegen bei idealer Südausrichtung
+ Bushaltestelle in kurzer Entfernung fußläufig erreichbar (circa 5 Minuten)
+ ideal für Pendler - der Hauptbahnhof ist fußläufig in 15 Minuten erreichbar
+ ideal für Familien (Kindergarten, Kinderkrippe, Schulen etc. gut erreichbar)
+ zahlreiche Einkaufsmöglichkeiten sind bequem in naher Umgebung vorhanden
Das Grundstück ist von Süden erschlossen. Auf der Südseite befindet sich auch die Einfahrt zur Doppelgarage, welche im rückwärtigen Teil des Grundstücks unweit des Hauseingangs angeordnet ist. Die Immobilie selbst ist derzeit auch im hinteren Teil des Grundstücks platziert, sodass im Süden eine großzügige Gartenfläche zur Verfügung steht.
Sonstiges
Es liegt ein Energieverbrauchsausweis vor.
Dieser ist gültig bis 16.7.2033.
Endenergieverbrauch beträgt 161.80 kwh/(m²*a).
Wesentlicher Energieträger der Heizung ist Gas.
Das Baujahr des Objekts lt. Energieausweis ist 1979.
Die Energieeffizienzklasse ist F.
Alle Angaben basieren auf Informationen unseres Auftraggebers. Wir übernehmen keine Gewähr für die Vollständigkeit, Richtigkeit und Aktualität dieser Angaben.
FOCUS-Magazin Top-Immobilienmakler:
2013, 2014, 2015, 2016, 2017, 2018, 2019, 2020, 2021, 2022, 2023
BELLEVUE-Magazin Best Property Agent:
2012, 2013, 2014, 2015, 2016, 2017, 2018, 2019, 2020, 2021, 2022, 2023
Daniel Fechner Immobilien, zertifiziert nach DIN EN 15733 (DIAZert) für Maklerdienstleistungen
FECHNER IMMOBILIEN ist Mitglied im Immobilienverband Deutschland IVD, dem Verband der Immobilienberater, Makler, Verwalter und Sachverständigen Region Süd e.V. sowie bei IMMOEBS e.V., der Verein der Ehemaligen und Förderer der Post-Graduate- und Masterstudiengänge zur Immobilienökonomie an der European Business School und der Universität Regensburg.
Kontakt aufnehmen
+++VERKAUFT+++Sofort verfügbar! Großzügiges Einfamilienhaus auf einem ebenso großen Grundstück in ruhiger Lage!
Ansprechpartner

Daniel Fechner
Telefon: +49 (841) 88 54 71 12
Telefax: +49 (841) 88 54 71 28
Haus zum Kauf
Kaufpreis 998.800 € |
Stellplatzanzahl (Garage) 2 |
Adresse 85053 Ingolstadt |
Wohnfläche ca. 170 m² |
Zimmer 6,50 |
Grundstücksfläche ca. 997 m² |
Objekt-Nr. 4947 |
Energieverbrauchsausweis
Endenergieverbrauch 161,80 kWh/(m²*a) |
Befeuerungsart Gas |
Heizungsart Zentralheizung |
Wesentlicher Energieträger GAS |
Baujahr (Energieausweis) 1979 |
Energieeffizienzklasse F |
Gültig bis 16.07.2033 |
Energieausweis 2014 |
0200400+
Ausstattung
Anzahl Badezimmer 2 |
Anzahl Balkone 1 |
Anzahl Schlafzimmer 5 |
Anzahl separate WCs 1 |
Anzahl Stellplätze 2 |
Anzahl Terrassen 1 |
Anzahl Zimmer 6,50 |
Kategorie Standard |
Baujahr 1979 |
Bauweise Massiv |
Befeuerungsart Gas |
Gäste-WC |
Gartennutzung |
Heizungsart Zentralheizung |
Kabel/Sat-TV |
Küche Einbauküche |
Provisionspflichtig |
Garagenanzahl 2 |
Stellplatzart Garage |
Unterkellert |
verfügbar ab sofort verfügbar |
Verkaufstatus verkauft |
Wasch/Trockenraum |
Zustand teil/vollrenovierungsbedürftig |