Viel Platz im ländlichen Bereich! Voll unterkellert - mit Wohnraumcharakter, Photovoltaikanlage etc.

verkauft

Beschreibung

Verkauft wird ein großzügiges Einfamilienhaus mit hochwertig nutzbarer Kellerfläche (ebenerdiger Zugang, Tageslicht etc.!) in Biberg, ein Ortsteil des Marktes Kipfenberg im Landkreis Eichstätt.

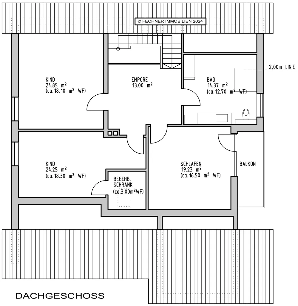
+ Es erwarten Sie 5 ZKB bei circa 209m² Wohnfläche (ohne anteilige Balkon- und Terrassenflächen!)
+ Parkmöglichkeiten bieten eine große Doppelgarage, eine Einzelgarage und ein Carport.
+ Beide Garagen verfügen über einen zugänglichen Garagenspeicher.
+ Ein beheizter Wintergarten lädt zum Verweilen ein.
+ Eine Photovoltaikanlage ist bereits vorhanden.
+ Die Grundstücksgröße beträgt 1.026m².

Highlight - hochwertig nutzbarer Keller mit Wohnraumcharakter:

Das in Massivbauweise errichtete Gebäude ist voll unterkellert. Die Kellerräume verfügen dank der leichten Hanglage des Grundstücks über viel Tageslicht und lassen eine hochwertige Nutzung zu. Ein ebenerdiger, separater Zugang auf der Gebäuderückseite (Nord) ist gegebenen. Die Räumlichkeiten sind überwiegend hochwertig ausgestattet, inklusive einem zweiten Badezimmer, einem Küchenbereich und attraktiven Bodenbelägen / Fenstern etc.

Modernisierungen / Instandhaltung:

Die Eigentümer haben sich fortlaufend immer um eine ordentliche Instandhaltung und Modernisierung der Immobilie bemüht.

+ 1997: Erneuerung der Öl-Zentralheizung.
+ 2018: Erneuerung des Fassaden-Anstriches.
+ 2020/2021: Erneuerung aller Fenster auf moderne Kunststofffenster mit 3-Scheiben-Isolierverglasung.
+ 2020/2021: Erneuerung des Gäste-WC im Erdgeschoss und Erneuerung des Badezimmers im Dachgeschoss.

Mitverkauftes Inventar:

Bereits im Kaufpreis enthalten sind die Einbauküche im Erdgeschoss, die Küchenzeile im Kellergeschoss, das Bad-Mobiliar, beide Schwedenöfen (Erdgeschoss & Kellergeschoss), die elektrische Markise sowie die Photovoltaikanlage.

Ausstattung

Gerne beschreiben wir Ihnen nachstehend einige Details zur Innenausstattung des Hauses.

+ Im Haus sind neuwertige Kunststofffenster mit 3-Scheiben-Isolierverglasung und Rollos (manuell) verbaut.
+ Das neue Gäste-WC verfügt über eine hochwertige Innenausstattung (Stein-Aufsatz-Waschbecken, Lackspanndecke etc.). Ein Fenster ist vorhanden.
+ Als Bodenbelag sind neben einem hochwertiger Natursteinboden (Solnhofener Platten) auch verschiedene Parkettbodenbeläge (Buche / Eiche) verlegt.

Das neue Badezimmer im Dachgeschoss überzeugt durch eine großzügige begehbare Dusche, einen ebenso großzügigen Waschtisch und die Möglichkeit, eine Waschmaschine direkt im Badezimmer anzuschließen. Ein Fenster ist vorhanden. Das Highlight bildet eine glänzende Lackspanndecke in der Farbe Weiß mit Schattenfuge und integrierten Beleuchtungselementen.

+ Ein weiteres Duschbad befindet sich im Kellergeschoss - ein Fenster ist auch hier vorhanden.

Lage

Biberg liegt auf der Hochfläche der südlichen Frankenalb, etwa 20 Kilometer nördlich von Ingolstadt und südlich des Gemeindesitzes Kipfenberg. Die Umgebung bietet eine malerische Landschaft mit sanften Hügeln, die eine harmonische Verbindung von ländlicher Idylle und guter Erreichbarkeit darstellen.

+ Ruhige Lage - ideal für Familien, die eine ruhige Wohnumgebung suchen.
+ Naturverbundenheit - die Nähe zur Natur bietet zahlreiche Freizeitmöglichkeiten im Freien.
+ Gute Infrastruktur - trotz der ländlichen Lage ist eine gute Anbindung an größere Städte, wie Ingolstadt, gegeben.

Das schulische Angebot ist für die Kleinsten in der Grundschule des Nachbarortes Schelldorf gesichert (circa 1 Kilometer entfernt).

Sonstiges

Es liegt ein Energieverbrauchsausweis vor.
Dieser ist gültig bis 16.8.2033.
Endenergieverbrauch beträgt 131.60 kwh/(m²*a).
Wesentlicher Energieträger der Heizung ist Öl.
Das Baujahr des Objekts lt. Energieausweis ist 1985.
Die Energieeffizienzklasse ist E.

Alle Angaben basieren auf Informationen unseres Auftraggebers. Wir übernehmen keine Gewähr für die Vollständigkeit, Richtigkeit und Aktualität dieser Angaben.

FOCUS-Magazin Top-Immobilienmakler:
2013, 2014, 2015, 2016, 2017, 2018, 2019, 2020, 2021, 2022, 2023, 2024

BELLEVUE-Magazin Best Property Agent:
2012, 2013, 2014, 2015, 2016, 2017, 2018, 2019, 2020, 2021, 2022, 2023, 2024

Daniel Fechner Immobilien, zertifiziert nach DIN EN 15733 (DIAZert) für Maklerdienstleistungen

FECHNER IMMOBILIEN ist Mitglied im Immobilienverband Deutschland IVD, dem Verband der Immobilienberater, Makler, Verwalter und Sachverständigen Region Süd e.V. sowie bei IMMOEBS e.V., der Verein der Ehemaligen und Förderer der Post-Graduate- und Masterstudiengänge zur Immobilienökonomie an der European Business School und der Universität Regensburg.

Ansprechpartner

Daniel Fechner

Daniel Fechner

Telefon: 004984188547112
Telefax: 004984188547128

df@fechner-immobilien.com

Kontakt aufnehmen

Haus zum Kauf

Kaufpreis 749.800 €
Stellplatzanzahl (Garage) 3
Stellplatzanzahl (Carport) 1
Adresse 85110 Kipfenberg
Wohnfläche ca. 190 m²
Zimmer 5
Grundstücksfläche ca. 1.026 m²
Objekt-Nr. 5076

Energieverbrauchsausweis

Endenergieverbrauch 131,60 kWh/(m²*a)
Befeuerungsart Öl
Heizungsart Zentralheizung
Wesentlicher Energieträger OEL
Baujahr (Energieausweis) 1985
Energieeffizienzklasse E
Gültig bis 16.08.2033
Energieausweis 2014

0200400+

Ausstattung

Anzahl Badezimmer 2
Anzahl Balkone 1
Anzahl Schlafzimmer 4
Anzahl separate WCs 1
Anzahl Stellplätze 4
Anzahl Terrassen 1
Anzahl Zimmer 5
Kategorie Standard
Baujahr 1985
Bauweise Massiv
Befeuerungsart Öl
Dachform Satteldach
Gäste-WC
Gartennutzung
Heizungsart Zentralheizung
Küche Einbauküche
Provisionspflichtig
Carportplätze 1
Garagenanzahl 3
Stellplatzart Garage, Carport
Unterkellert
verfügbar ab sofort verfügbar
Verkaufstatus verkauft
Wasch/Trockenraum
Zustand teil/vollsaniert

Weitere Immobilienangebote

Erfolg! Vielen Dank für Ihre Bewertung.

Fehler! Bitte füllen Sie alle Felder aus.