+++VERKAUFT+++Viel Platz nahe Greding! Große Doppelgarage - KfW Effizienzhaus 55 - 42,5cm Ziegelmauerwerk u.v.m.!
Beschreibung
Verkauft wird ein modernes Einfamilienhaus in Greding / Röckenhofen. Die Immobilie überzeugt durch eine intelligente Raumaufteilung, stilistische Highlights und ein großes Platzangebot. Sowohl im Bezug auf die reine Wohnfläche als auch im Bezug auf die weitere Nutzfläche.
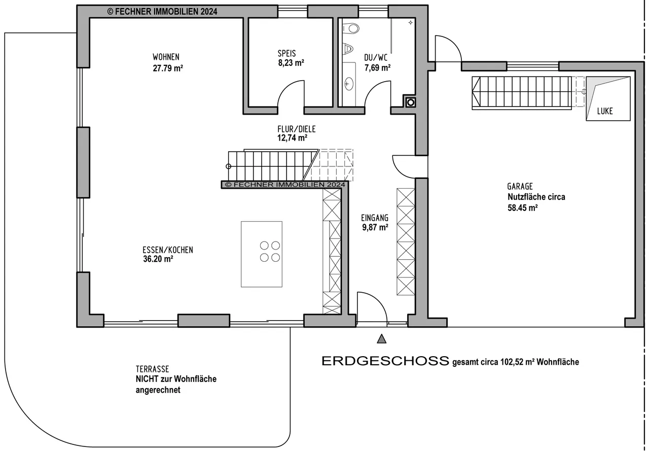
+ Es erwarten Sie 4,5 Zimmer bei circa 202,89 m² Wohnfläche.
+ Das Haus ist in Massivbauweise errichtet (42,5cm Ziegelmauerwerk) und voll unterkellert.
+ Die große Doppelgarage (circa 58,45m² Nfl.) ist ebenfalls unterkellert - eine Treppe führt innenliegend von der Garage in den Keller (mit Lastenkran!).
+ Bereits vorhanden sind ein Wallbox-Anschluss inklusive Netzwerkverkabelung (LAN).
+ Es ist ein Gästebadezimmer im Erdgeschoss vorhanden und das Master-Bad im Obergeschoss (direkter Zugang ins Schlafzimmer über die Ankleide).
+ Das KfW-Effizienzhaus 55 erreicht die Energieeffizienzklasse A+, dank Verwendung einer Luft/Wasser-Wärmepumpe.
+ Zusätzlich kann im Kellergeschoss das Heizsystem über einen Holzofen gespeist werden.
+ Eine zentrale Lüftungsanlage unterstützt ein behagliches Wohnklima im gesamten Gebäude.
+ Es sind eine Photovoltaikanlage (7,35 kWp) und Solarelemente auf dem Dach vorhanden.
+ Im Haus wurden moderne Sichtbeton-Filigrandecken verbaut.
Eine wunderbar neuwertiges Haus, welches kurzfristig bezogen werden kann. Die Außenanlagen sind noch nicht final fertiggestellt. Derzeit werden die Rasenflächen für die Rasenansaat vorbereitet. Hier kann der künftige Eigentümer noch seine persönlichen Wünsche in der Gartengestaltung verwirklichen.
Ausstattung
Gerne beschreiben wir Ihnen nachstehend einige Details zur Innenausstattung des Hauses.
+ Es sind Kunststofffenster mit 3-Scheiben-Isolierverglasung in der Farbe Anthrazit verbaut.
+ Elektrische Rollos sind im Obergeschoss vorhanden, elektrische Raffstore-Jalousetten im Erdgeschoss.
+ Die Innentüren sind modern und zeitlos in der Farbe Weiß gehalten.
+ In den Wohn- und Schlafräumen sind pflegeleichte Vinyl-Designboden in Eiche-Optik verlegt, ebenso in den meisten Kellerräumen.
+ Die restlichen Räume als auch die Sanitärbereiche sind ansprechend gefliest.
Es steht ein Gäste-WC / Gäste-Badezimmer im Erdgeschoss zur Verfügung. Inklusive begehbarer Dusche, Massivholzwaschtisch mit Waschbecken, WC und Urinal. Im Obergeschoss befindet sich das Eltern-Badezimmer, ebenfalls mit begehbarer Dusche, zusätzlicher Badewanne, Waschtisch und WC.
Lage
Die Immobilie befindet sich in Greding / Röckenhofen. Ein Ort, der sich auf dem sogenannten "kleinen Berg" der Großgemeinde Greding befindet. Derzeit zählt die kleine Ortschaft circa 326 Einwohner (Stand 11.12.2023).
+ Alle Dinge des täglichen Bedarfs können bequem in Greding erledigt werden (circa 4,5km entfernt).
+ Für Familien ist das schulische Angebot in Greding von der Grundschule bis zur Mittleren Reife vorhanden.
+ Weiterführende Schulen sind in den Nachbarorten vorhanden.
Das Grundstück befindet sich in einem kleinen Neubaugebiet. Die Bebauung in der unmittelbaren Nachbarschaft ist überwiegend geprägt von modernen und ansprechenden Einfamilienhäusern.
Sonstiges
Es liegt ein Energiebedarfsausweis vor.
Dieser ist gültig bis 30.11.2030.
Endenergiebedarf beträgt 12.90 kwh/(m²*a).
Wesentlicher Energieträger der Heizung ist Luft/wasser Wärmepumpe.
Das Baujahr des Objekts lt. Energieausweis ist 2021.
Die Energieeffizienzklasse ist A+.
Alle Angaben basieren auf Informationen unseres Auftraggebers. Wir übernehmen keine Gewähr für die Vollständigkeit, Richtigkeit und Aktualität dieser Angaben.
FOCUS-Magazin Top-Immobilienmakler:
2013, 2014, 2015, 2016, 2017, 2018, 2019, 2020, 2021, 2022, 2023, 2024
BELLEVUE-Magazin Best Property Agent:
2012, 2013, 2014, 2015, 2016, 2017, 2018, 2019, 2020, 2021, 2022, 2023, 2024
Daniel Fechner Immobilien, zertifiziert nach DIN EN 15733 (DIAZert) für Maklerdienstleistungen
FECHNER IMMOBILIEN ist Mitglied im Immobilienverband Deutschland IVD, dem Verband der Immobilienberater, Makler, Verwalter und Sachverständigen Region Süd e.V. sowie bei IMMOEBS e.V., der Verein der Ehemaligen und Förderer der Post-Graduate- und Masterstudiengänge zur Immobilienökonomie an der European Business School und der Universität Regensburg.
Kontakt aufnehmen
+++VERKAUFT+++Viel Platz nahe Greding! Große Doppelgarage - KfW Effizienzhaus 55 - 42,5cm Ziegelmauerwerk u.v.m.!
Ansprechpartner
Daniel Fechner
Telefon: +49 (841) 88 54 71 12
Telefax: +49 (841) 88 54 71 28
Haus zum Kauf
| Kaufpreis 999.800 € |
| Stellplatzanzahl (Garage) 2 |
| Stellplatzanzahl (Freiplatz) 2 |
| Adresse 91171 Greding / Röckenhofen |
| Wohnfläche ca. 202,89 m² |
| Zimmer 4,50 |
| Grundstücksfläche ca. 693 m² |
| Objekt-Nr. 5057 |
Energiebedarfsausweis
| Endenergiebedarf 12,90 kWh/(m²*a) |
| Befeuerungsart Luft/Wasser-Wärmepumpe |
| Heizungsart Fußbodenheizung |
| Wesentlicher Energieträger LUFTWP |
| Baujahr (Energieausweis) 2021 |
| Energieeffizienzklasse A+ |
| Gültig bis 30.11.2030 |
| Energieausweis 2014 |
0200400+
Ausstattung
| Anzahl Badezimmer 2 |
| Anzahl Schlafzimmer 3 |
| Anzahl Stellplätze 4 |
| Anzahl Terrassen 1 |
| Anzahl Zimmer 4,50 |
| Kategorie Gehoben |
| Baujahr 2021 |
| Bauweise Massiv |
| Befeuerungsart Luft/Wasser-Wärmepumpe |
| Dachform Satteldach |
| Gartennutzung |
| Heizungsart Fußbodenheizung |
| Küche Einbauküche, offene Küche |
| Provisionspflichtig |
| Stellplätze 2 |
| Garagenanzahl 2 |
| Stellplatzart Garage, Freiplatz |
| Unterkellert |
| verfügbar ab nach Vereinbarung |
| Verkaufstatus verkauft |
| Wasch/Trockenraum |
| Zustand neuwertig |